Офіс вул. Липківського Василя Митрополита 14/18, 250м2

  • Солом'янський район вул. Липківського Василя Митрополита 14/18
  • Код: RC-223-394
  • Добавлено: 10.04.2026
  • Додати в обране
Тип ринку
Вторинний ринок
Вулиця
вул. Липківського Василя Митрополита 14/18
Назначение
Офісне приміщення
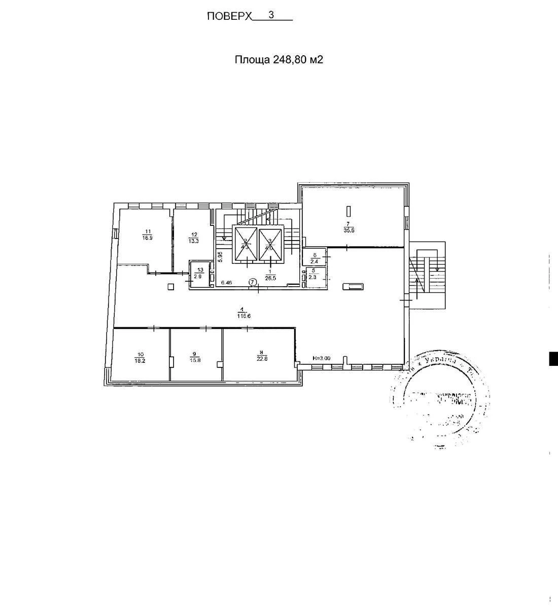
Поверх
3 Поверх
Поверховість
4 поверховий будинок
Загальна площа
250 м2
Загальний стан
З ремонтом
Ціна:
249 483 грн.
5 750 USD
Опис об'єкту

Офісне приміщення. Планування: 6 окремих кабінетів, опенспейс робочі зони (гнучко змінюються) 116 м2, зона кухні, зона рецепції, 3 санвузла, серверна. Технічне оснащення: автономне опалення (електро), вода і каналізація, світло 24/7 (є генератор на випадок надзвичайної ситуації, яка забезпечує роботу ліфтів, подачу води і опалення та повне функціонування всього офісного приміщення).

Схожі пропозиції