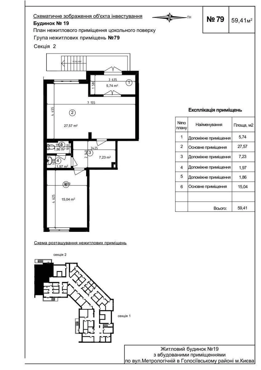
Об'єкт торгівлі вул. Метрологічна 21, 59м2

  • Голосіївський район вул. Метрологічна 21
  • Код: RC-223-497
  • Добавлено: 23.05.2026
  • Додати в обране
Тип ринку
Вторинний ринок
Вулиця
вул. Метрологічна 21
Назначение
Торгове приміщення
Поверх
1 Поверх
Поверховість
9 поверховий будинок
Загальна площа
59 м2
Загальний стан
Без ремонту
Ціна:
27 500 грн.
621 USD
Опис об'єкту

ЖК «Кришталеві джерела», приміщення вільного призначення. Є можливість розміщення зовнішньої реклами. Проводимо ремонт приміщень під орендаря, базовий або індивідуальний, за домовленістю. Оренда комерційних приміщень напряму від забудовника. Доступні приміщення різної площі, планування та функціонального призначення: під офіси, сервіс, торгівлю, студії, склади та інші направлення.

Схожі пропозиції