Office vul. Lypkivs'kogo Vasylja Mytropolyta 14/18, 250m2

  • Solomianskyi District vul. Lypkivs'kogo Vasylja Mytropolyta 14/18
  • Code: RC-223-394
  • Added by: 10.04.2026
  • Add to favorites
Market type
Secondary market
Street
vul. Lypkivs'kogo Vasylja Mytropolyta 14/18
Purpose
Office Premise
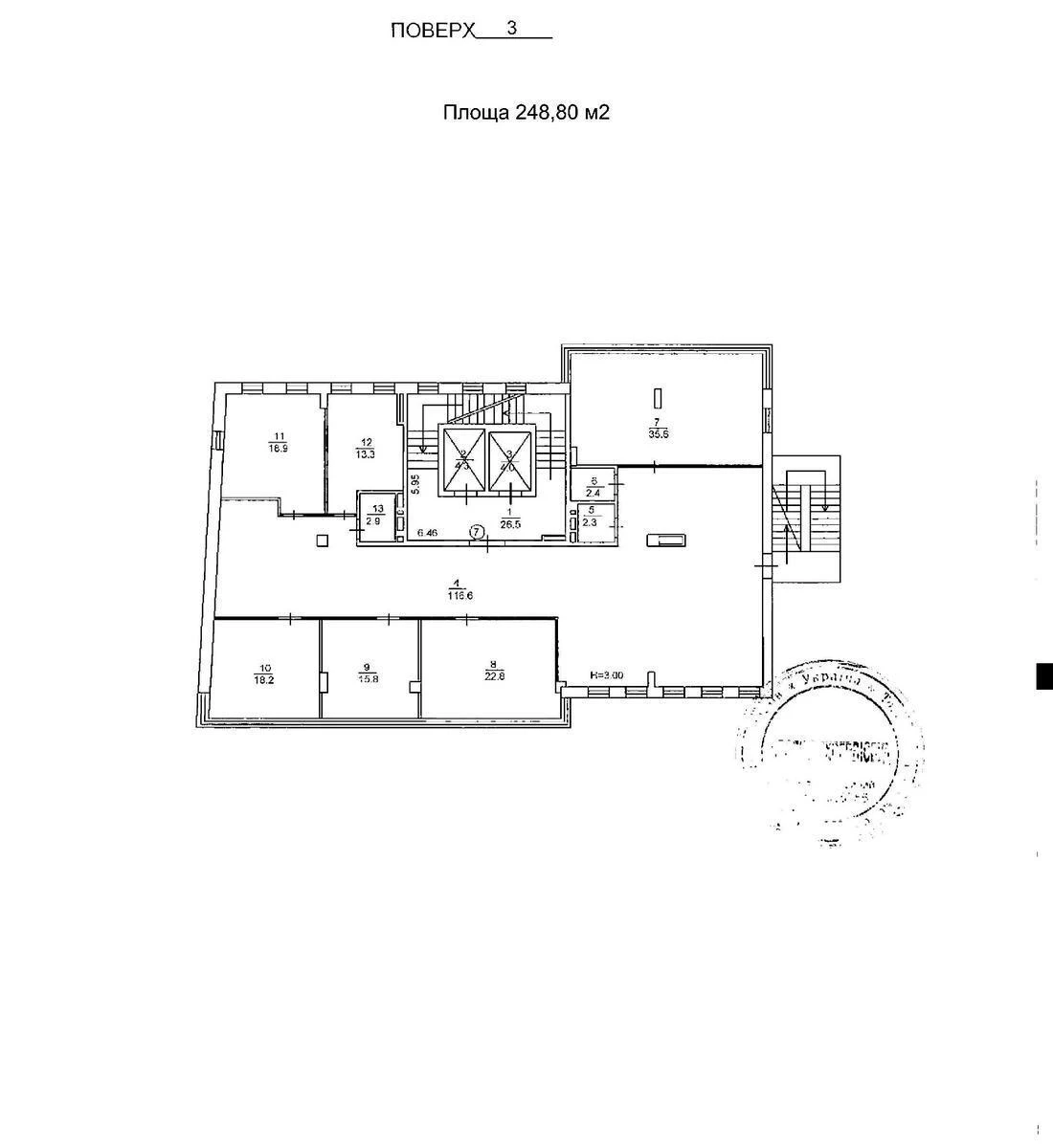
Floor
3 Floor
Number of storeys
4 storey house
Total area
250 м2
General state
With repair
Price:
249 483 UAH
5 750 USD
Description of the object

Office space. Layout: 6 separate offices, open-plan workspaces (flexible layout) 116 m², kitchen area, reception area, 3 toilets, server room. Technical facilities: independent heating (electric), water and drainage, 24/7 electricity (there is a generator for emergencies, which ensures the operation of lifts, water supply and heating, and the full functioning of the entire office space).

Similar offers