Об'єкт торгівлі вул. Вишгородська 44, 224м2

  • Оболонський район вул. Вишгородська 44
  • Код: RC-223-495
  • Добавлено: 31.05.2026
  • Додати в обране
Тип ринку
Вторинний ринок
Вулиця
вул. Вишгородська 44
Назначение
Торгове приміщення
Поверх
1 Поверх
Поверховість
5 поверховий будинок
Загальна площа
224 м2
Загальний стан
З ремонтом
Ціна:
155 000 грн.
3 500 USD
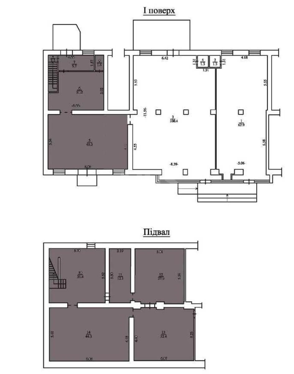
Опис об'єкту

Приміщення вільного призначення. Підвал: 148,1 мг (склад / робоча зона). 2 окремих входи. Висота стелі: 3,5 м. Потужність: 40 кВт. Можливість встановлення генератора. Є рампа для зручного завантаження/ розвантаження.

Схожі пропозиції