Офис ул. Липковского Василия Митрополита 14/18, 250м2

  • Соломенский район ул. Липковского Василия Митрополита 14/18
  • Код: RC-223-394
  • Добавлено: 10.04.2026
  • Добавить в избранное
Тип рынка
Вторичный рынок
Улица
ул. Липковского Василия Митрополита 14/18
Призначення
Офисное помещение
Этаж
3 Этаж
Этажность
4 этажный дом
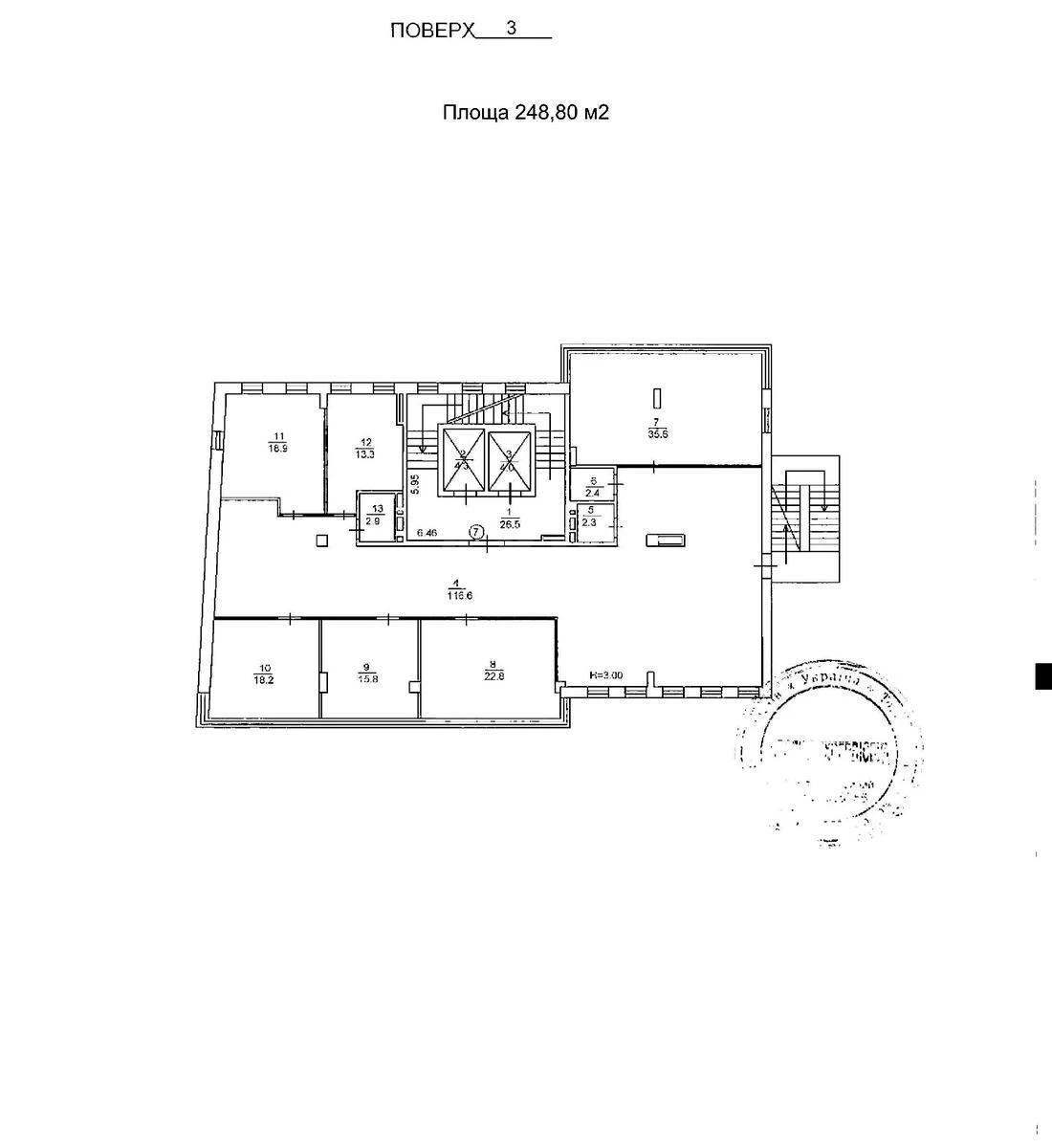
Общая площадь
250 м2
Общее состояние
С ремонтом
Цена:
249 483 грн.
5 750 USD
Описание объекта

Офисное помещение. Планировка: 6 отдельных кабинетов, открытые рабочие зоны (гибко изменяемые) 116 м², кухонная зона, зона рецепции, 3 санузла, серверная. Техническое оснащение: автономное отопление (электрическое), вода и канализация, свет 24/7 (имеется генератор на случай чрезвычайной ситуации, который обеспечивает работу лифтов, подачу воды и отопления, а также полное функционирование всего офисного помещения).

Похожие предложения