Оренда

Усі фото (7)
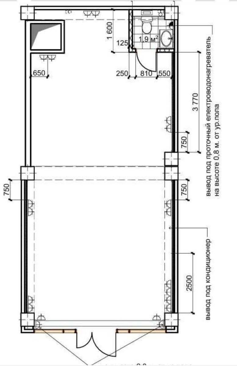
Об'єкт торгівлі вул. Мишуги Олександра 10, 62м2
- Додати в обране
-
Подiлитись посиланням
Тип ринку
Вторинний ринок
Вулиця
вул. Мишуги Олександра 10
Назначение
Торгове приміщення
Поверх
1 Поверх
Поверховість
5 поверховий будинок
Загальна площа
62 м2
Загальний стан
З ремонтом
Ціна:
26 900 грн.
646 USD
Опис об'єкту
Приміщення вільного призначення. 1 поверх, власний окремий вхід. Ідеально під магазин, шоу-рум, салон, інтернет-магазин, офіс. Якісний ремонт, робили для себе. Інтернет, сигналізація, захисні ролети, кондиціонер з можливістю працювати на обігрів при -25град., стіни утеплені, зручний санвузол у світлих тонах, також є можливість встановлення генератора на вулиці. Якісне світлодіодне освітлення, система власного зовнішнього та внутрішнього відеоспостереження (3 камери), місце під рекламну вивіску.
Додаткова інформація