Аренда

Все фото (7)
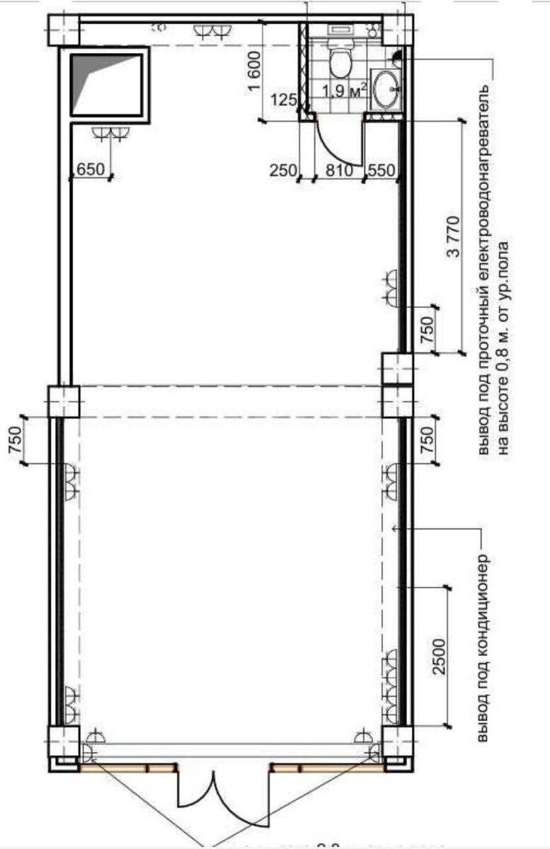
Объект торговли ул. Мишуги Александра 10, 62м2
- Добавить в избранное
-
Поделиться ссылкой
Тип рынка
Вторичный рынок
Улица
ул. Мишуги Александра 10
Призначення
Торговое помещение
Этаж
1 Этаж
Этажность
5 этажный дом
Общая площадь
62 м2
Общее состояние
С ремонтом
Цена:
26 900 грн.
646 USD
Описание объекта
Помещение свободного назначения. 1 этаж, собственный отдельный вход. Идеально под магазин, шоу-рум, салон, интернет-магазин, офис. Качественный ремонт, делали для себя. Интернет, сигнализация, защитные роллеты, кондиционер с возможностью работать на обогрев при -25град., стены утеплены, удобный санузел в светлых тонах, также есть возможность установки генератора на улице. Качественное светодиодное освещение, система собственного наружного и внутреннего видеонаблюдения (3 камеры), место под рекламную вывеску.
Дополнительная информация