Rent

All photos (7)
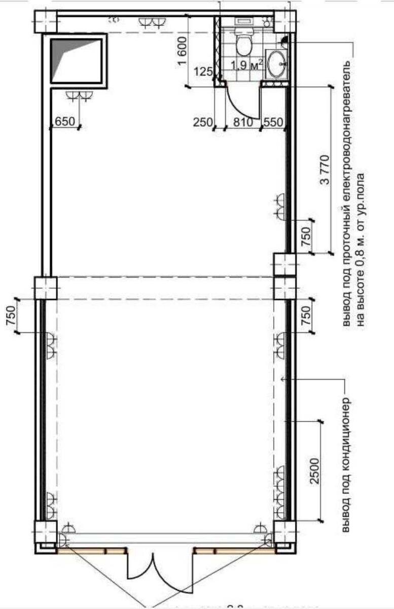
Trade object vul. Myshugy Oleksandra 10, 62m2
- Add to favorites
-
Share link
Market type
Secondary market
Street
vul. Myshugy Oleksandra 10
Purpose
Trade Premise
Floor
1 Floor
Number of storeys
5 storey house
Total area
62 м2
General state
With repair
Price:
26 900 UAH
646 USD
Description of the object
Premises for free use. 1st floor, own separate entrance. Ideal for a store, showroom, salon, online store, office. High-quality repairs, done for yourself. Internet, alarm system, security shutters, air conditioning with the ability to work for heating at -25 degrees, walls are insulated, comfortable bathroom in light colors, it is also possible to install a generator on the street. High-quality LED lighting, own external and internal video surveillance system (3 cameras), a place for an advertising sign.
Additional Information