Оренда

Усі фото (11)
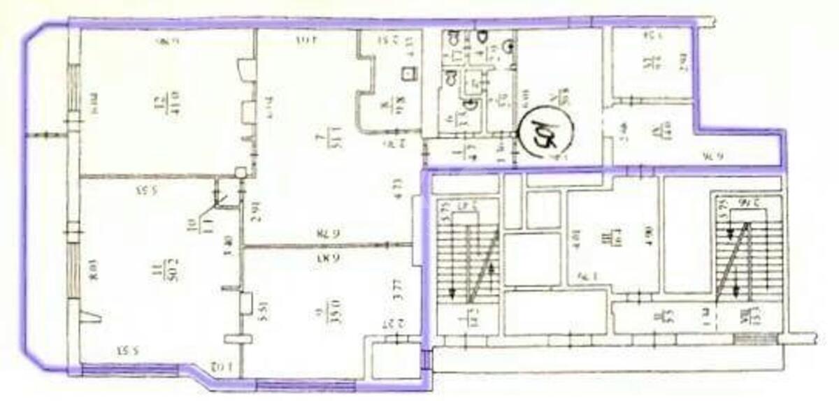
Офіс вул. Руденко Лариси 6А, 204м2
- Додати в обране
-
Подiлитись посиланням
Тип ринку
Вторинний ринок
Вулиця
вул. Руденко Лариси 6А
Назначение
Офісне приміщення
Поверх
5 Поверх
Поверховість
8 поверховий будинок
Загальна площа
204 м2
Загальний стан
З ремонтом
Ціна:
35 000 грн.
840 USD
Опис об'єкту
Офісне приміщення. Ресепшн, 4 кабінети, кухня, 2 санвузли. Кондиціонери, бойлер. Пропонується з меблями. Система (СКД). Нежитловий фонд. Станція метро Позняки – 7 хв.
Додаткова інформація