Об'єкт торгівлі наб. Дніпровська 20А, 108м2

  • Дарницький район наб. Дніпровська 20А
  • Код: SC-219-079
  • Добавлено: 25.02.2026
  • Додати в обране
Тип ринку
Вторинний ринок
Вулиця
наб. Дніпровська 20А
Назначение
Торгове приміщення
Поверх
1 Поверх
Поверховість
25 поверховий будинок
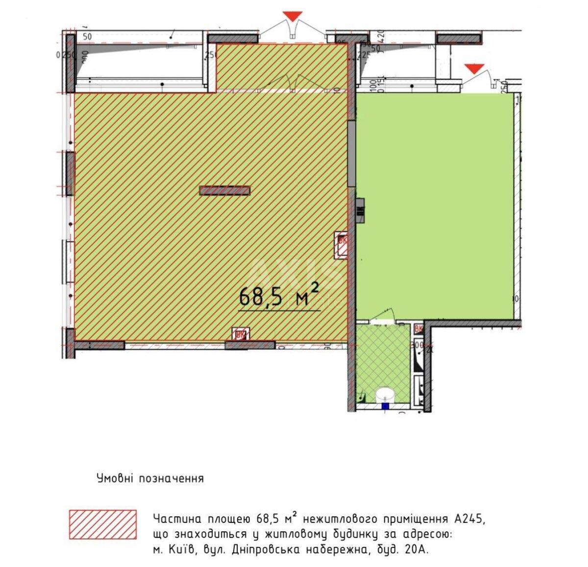
Загальна площа
108 м2
Загальний стан
З ремонтом
Ціна:
17 323 912 грн.
400 000 USD
Опис об'єкту

ЖК «Севен», приміщення вільного призначення. Найкраща локація. Фасад на куті ЖК. Перший будинок від метро. До ст. м. Осокорки - 200 метрів. Фактична площа - 108 м2 (площа згідно техпаспорта - 104,5 м2), висота стелі - 3,5 м. Об’єкт поділено на два приміщення площами 68 м2 та 40 м2. В кожному приміщенні є окремий вхід та санвузол.

Схожі пропозиції