Об'єкт торгівлі вул. Звіринецька 63, 40м2

  • Печерський район вул. Звіринецька 63
  • Код: SC-221-676
  • Добавлено: 23.02.2026
  • Додати в обране
Тип ринку
Вторинний ринок
Вулиця
вул. Звіринецька 63
Назначение
Торгове приміщення
Поверх
1 Поверх
Поверховість
9 поверховий будинок
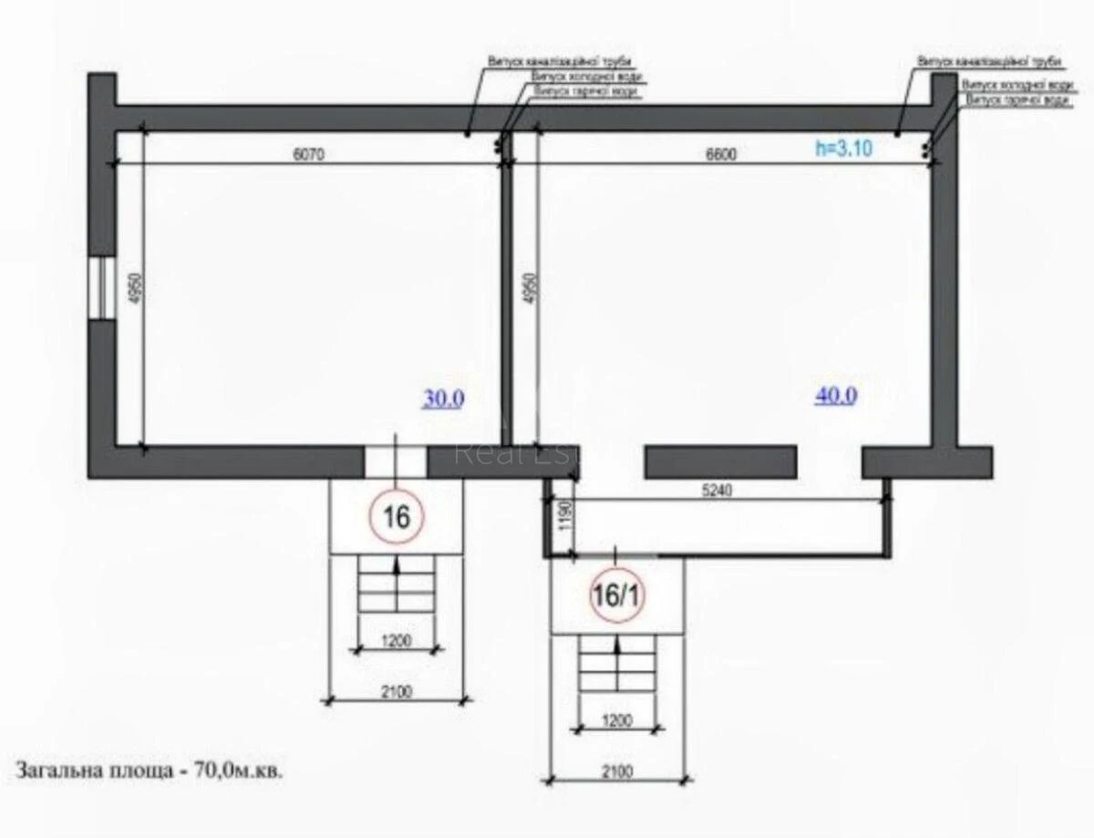
Загальна площа
40 м2
Загальний стан
З ремонтом
Ціна:
5 499 606 грн.
127 000 USD
Опис об'єкту

Приміщення вільного призначення. Велика вітрина. 2 окремих, Фасадні входи. Кутовий фасад. Є все необхідне для роботи. Підійде під любий вид діяльності. Є орендарі. Розвинена інфраструктура. Гарна та зручна локація.

Схожі пропозиції