Объект торговли наб. Днепровская 20А, 108м2

  • Дарницкий район наб. Днепровская 20А
  • Код: SC-219-079
  • Добавлено: 25.02.2026
  • Добавить в избранное
Тип рынка
Вторичный рынок
Улица
наб. Днепровская 20А
Призначення
Торговое помещение
Этаж
1 Этаж
Этажность
25 этажный дом
Общая площадь
108 м2
Общее состояние
С ремонтом
Цена:
17 323 912 грн.
400 000 USD
Описание объекта

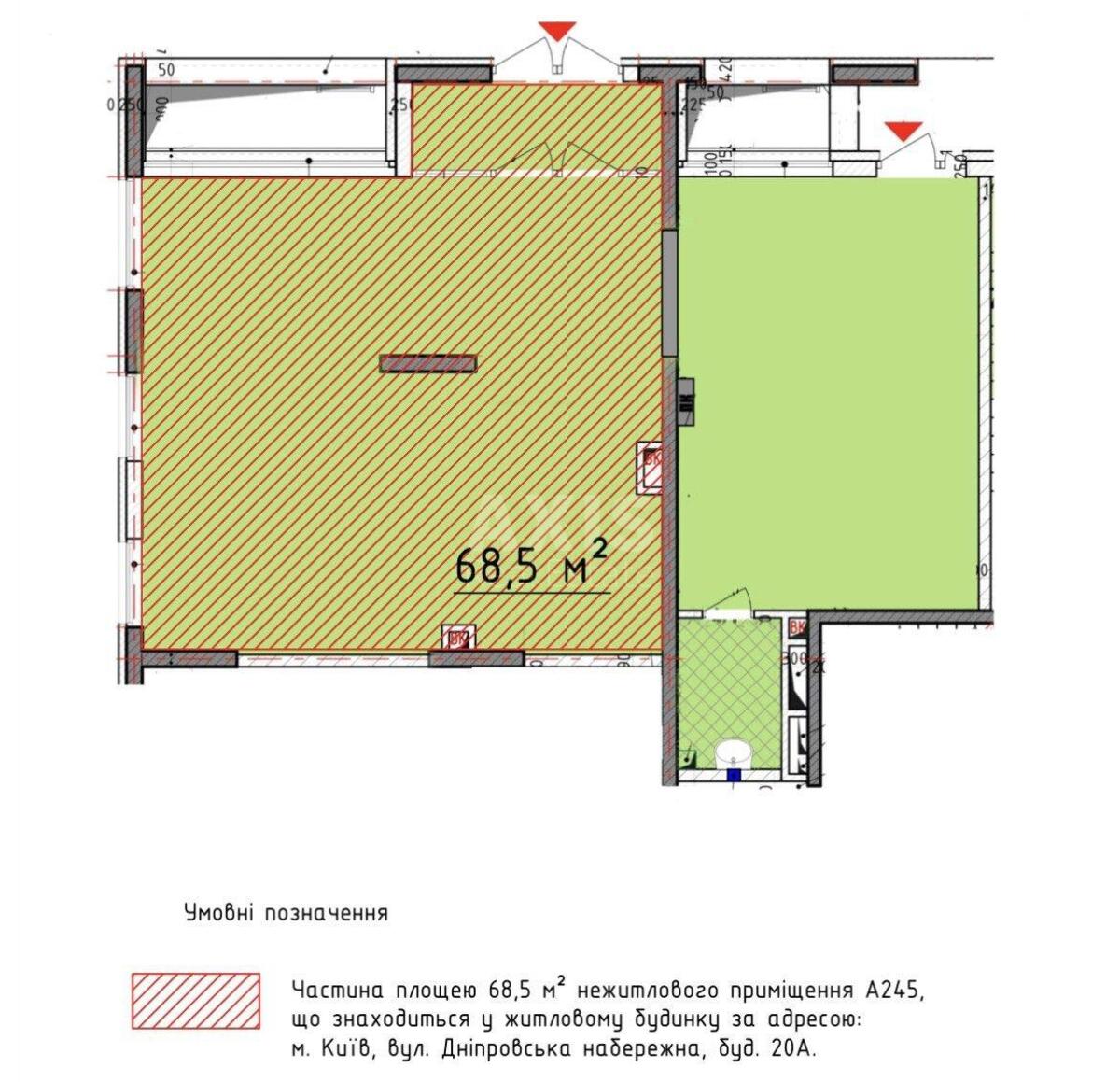
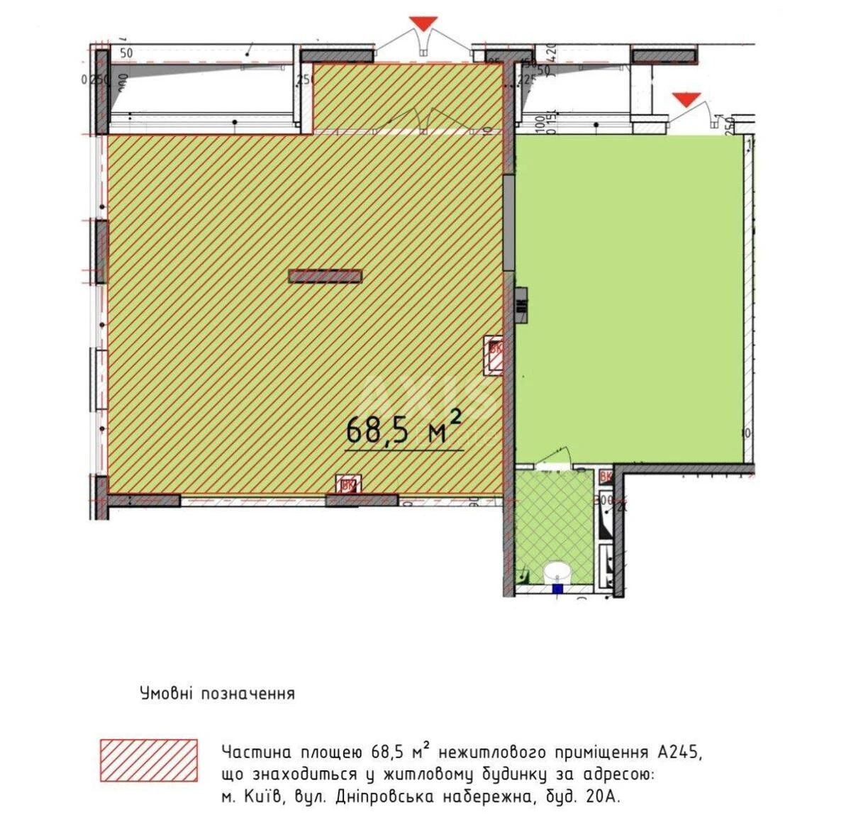
ЖК "Севен", помещение свободного назначения. Лучшая локация. Фасад на углу ЖК. Первый дом от метро. До ст. м. м. Осокорки - 200 метров. Фактическая площадь - 108 м2 (площадь согласно техпаспорта - 104,5 м2), высота потолков - 3,5 м. Объект разделен на два помещения площадями 68 м2 и 40 м2. В каждом помещении есть отдельный вход и санузел.

Похожие предложения