Trade object nab. Dniprovs'ka 20А, 108m2

  • Darnytskyi District nab. Dniprovs'ka 20А
  • Code: SC-219-079
  • Added by: 25.02.2026
  • Add to favorites
Market type
Secondary market
Street
nab. Dniprovs'ka 20А
Purpose
Trade Premise
Floor
1 Floor
Number of storeys
25 storey house
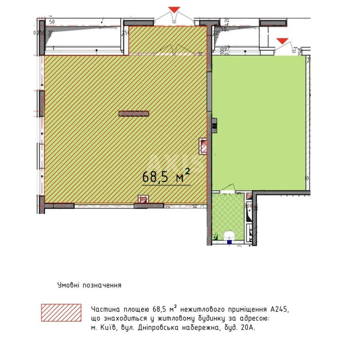
Total area
108 м2
General state
With repair
Price:
17 323 912 UAH
400 000 USD
Description of the object

Residential complex "Seven", free premises. The best location. Facade on the corner of the residential complex. The first house from the subway. To the metro station. Osokorky - 200 meters. The actual area is 108 m2 (area according to the technical passport - 104.5 m2), ceiling height - 3.5 m. The property is divided into two premises with the area of 68 m2 and 40 m2. Each room has a separate entrance and a bathroom.

Similar offers