Об'єкт сервісу вул. Олександра Олеся 5, 180м2

  • Подільський район вул. Олександра Олеся 5
  • Код: RC-221-442
  • Добавлено: 24.02.2026
  • Додати в обране
Тип ринку
Вторинний ринок
Вулиця
вул. Олександра Олеся 5
Назначение
Сервісний об'єкт
Поверх
2 Поверх
Поверховість
2 поверховий будинок
Загальна площа
180 м2
Загальний стан
З ремонтом
Ціна:
144 800 грн.
3 345 USD
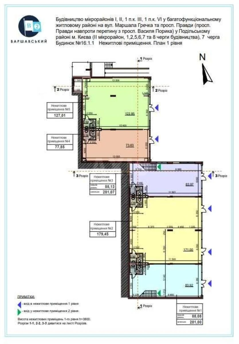
Опис об'єкту

ЖК Варшавський 2, приміщення вільного призначення. Є можливість об'єднати два приміщення у 460м.кв. Висота 3.6м. Багато місця під літню терасу. Рекламу. Можна орендувати різну квадратуру. Усі міські комунікації. Розглядається під кафе, клініку, магазин, офіс, ресторан, представництво тощо.

Схожі пропозиції