Объект сервиса ул. Александра Олеся 5, 180м2

  • Подольский район ул. Александра Олеся 5
  • Код: RC-221-442
  • Добавлено: 24.02.2026
  • Добавить в избранное
Тип рынка
Вторичный рынок
Улица
ул. Александра Олеся 5
Призначення
Сервисный объект
Этаж
2 Этаж
Этажность
2 этажный дом
Общая площадь
180 м2
Общее состояние
С ремонтом
Цена:
144 800 грн.
3 345 USD
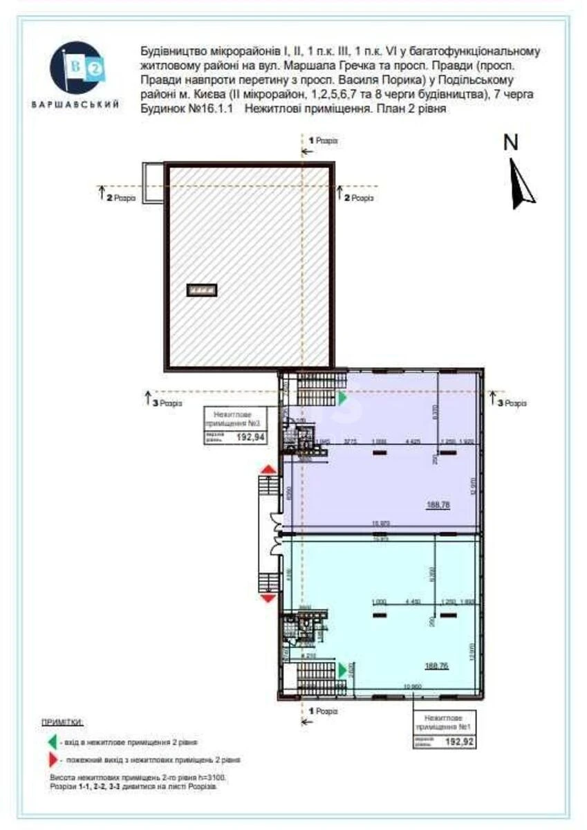
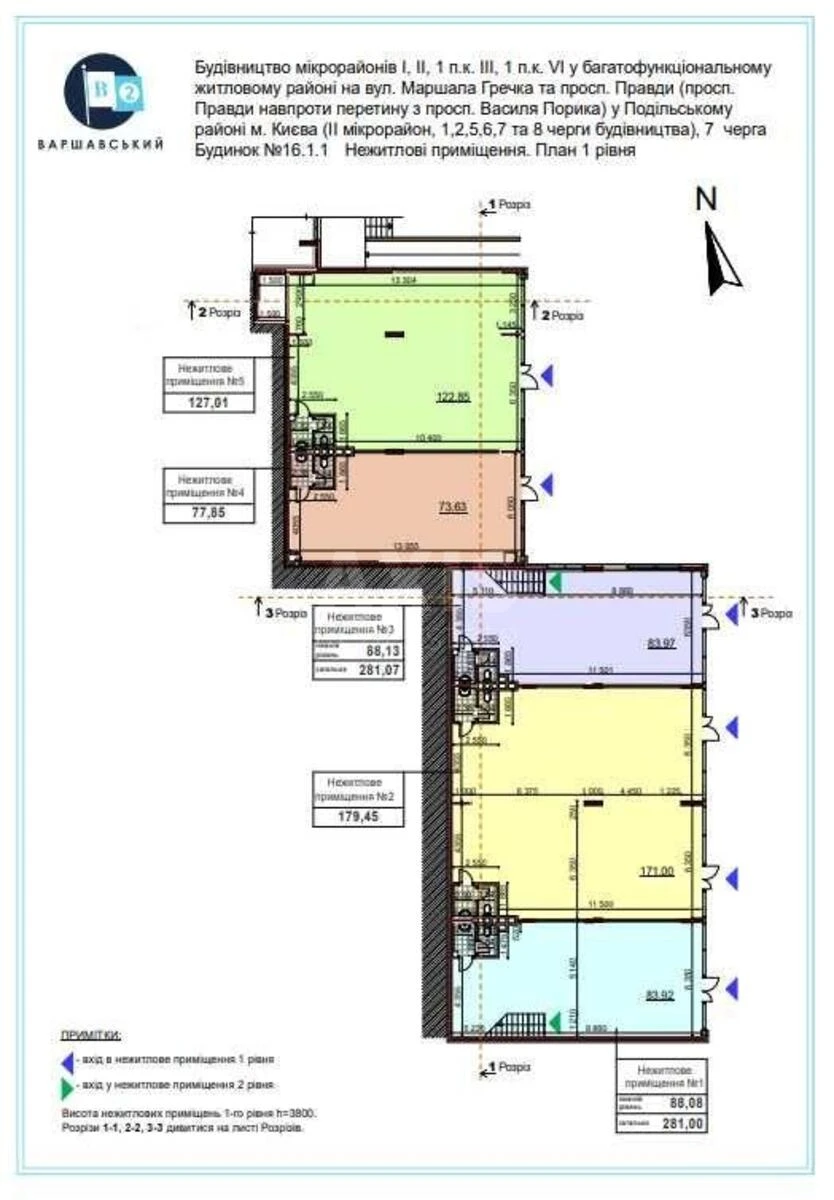
Описание объекта

ЖК Варшавский 2, помещение свободного назначения. Есть возможность объединить два помещения в 460 кв.м. Высота 3,6 м. Много места под летнюю террасу. Рекламу. Можно арендовать разную квадратуру. Все городские коммуникации. Рассматривается под кафе, клинику, магазин, офис, ресторан, представительство и т.д.

Похожие предложения