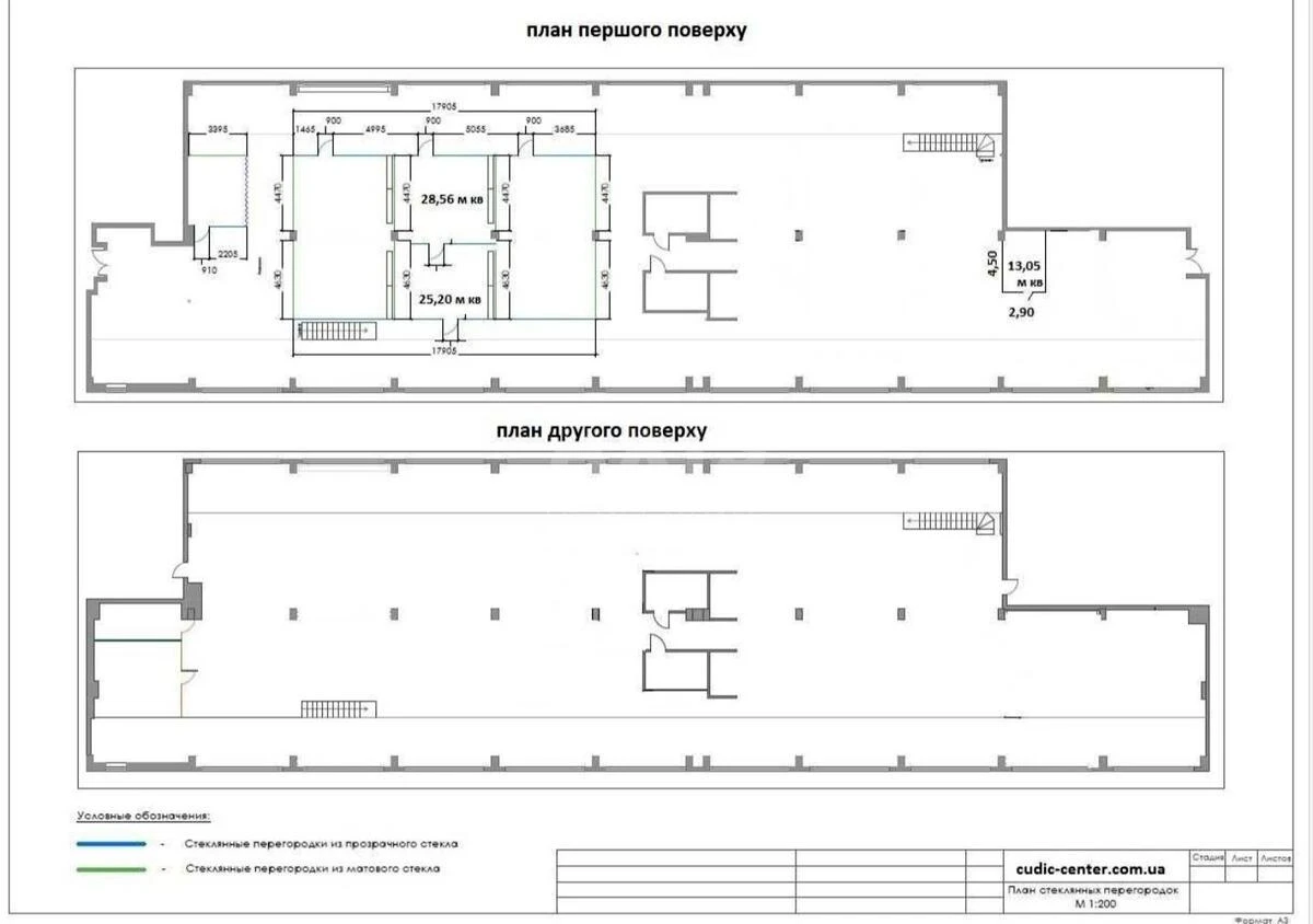
Офіс вул. Шолуденка 3, 1712м2

  • Шевченківський район вул. Шолуденка 3
  • Код: RC-223-395
  • Добавлено: 10.04.2026
  • Додати в обране
Тип ринку
Вторинний ринок
Вулиця
вул. Шолуденка 3
Назначение
Офісне приміщення
Поверх
1 Поверх
Поверховість
6 поверховий будинок
Загальна площа
1712 м2
Загальний стан
З ремонтом
Ціна:
1 039 932 грн.
23 968 USD
Опис об'єкту

Офісне приміщення. Інженерні системи, 4 ліфта, припливно-витяжна вентиляція, оптоволоконні лінії зв'язку, швидкісний інтернет (5 провайдерів на вибір). Опалення та ГВП автономне. Електроенергія без перебою, генератор. Укриття в підземному паркінгу. Забезпечимо цілодобовою фізичною охороною: працює пропускна система, відеоспостереження, пожежна сигналізація.

Схожі пропозиції