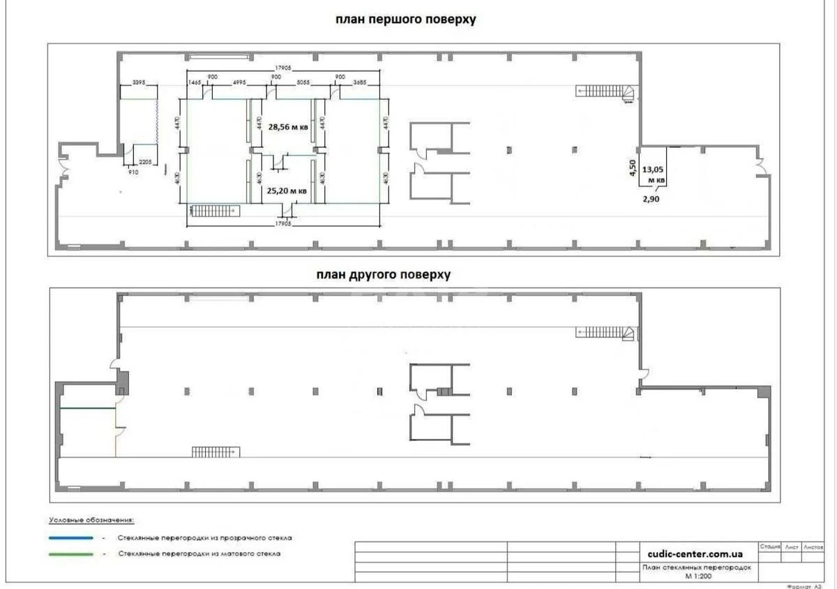
Офис ул. Шолуденко 3, 1712м2

  • Шевченковский район ул. Шолуденко 3
  • Код: RC-223-395
  • Добавлено: 10.04.2026
  • Добавить в избранное
Тип рынка
Вторичный рынок
Улица
ул. Шолуденко 3
Призначення
Офисное помещение
Этаж
1 Этаж
Этажность
6 этажный дом
Общая площадь
1712 м2
Общее состояние
С ремонтом
Цена:
1 039 932 грн.
23 968 USD
Описание объекта

Офисное помещение. Инженерные системы, 4 лифта, приточно-вытяжная вентиляция, оптоволоконные линии связи, высокоскоростной интернет (5 провайдеров на выбор). Автономное отопление и горячее водоснабжение. Электроэнергия без перебоев, генератор. Место для парковки в подземном паркинге. Обеспечим круглосуточную физическую охрану: работает пропускная система, видеонаблюдение, пожарная сигнализация.

Похожие предложения