Офіс вул. Нижньоюрківська 37, 254м2

  • Подільський район вул. Нижньоюрківська 37
  • Код: RC-219-419
  • Добавлено: 17.12.2025
  • Додати в обране
Тип ринку
Вторинний ринок
Вулиця
вул. Нижньоюрківська 37
Назначение
Офісне приміщення
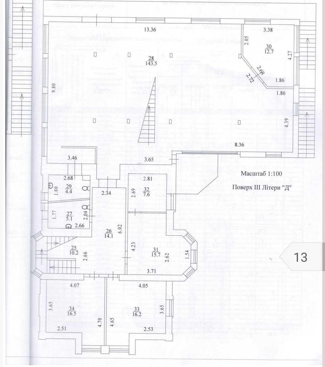
Поверх
2 Поверх
Поверховість
3 поверховий будинок
Загальна площа
254 м2
Загальний стан
З ремонтом
Ціна:
89 000 грн.
2 111 USD
Опис об'єкту

Офісне приміщення. 3 поверхи та мансарда кабінетна система та open space. Ідеальна пропозиція для розміщення офісу, медичного чи навчального центру, шоуруму, клініки, фітнес-студії, складу з офісом або іншої комерційної діяльності. Охорона, відео нагляд. Зручне планування. ст м Т.Шевченка поруч, 10-15хвилин. Автономне живлення при відключені світла. Окремий вхід. Паркінг. Комунікації підведені. Високий пішохідний та автомобільний трафік.

Схожі пропозиції