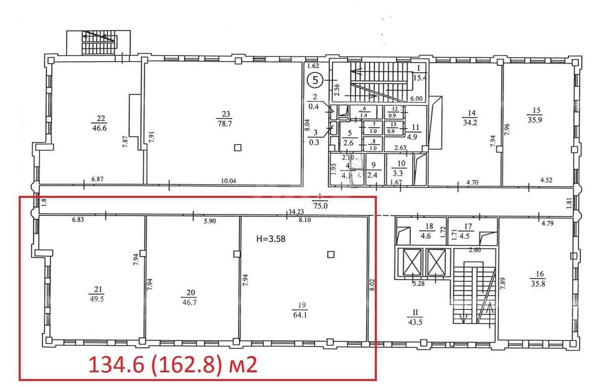
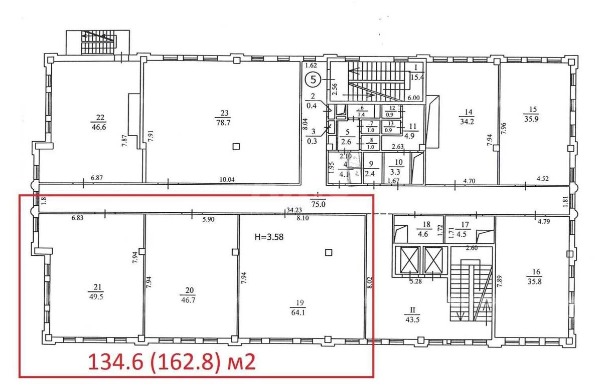
Офіс вул. Верхній Вал 4, 134м2

  • Подільський район вул. Верхній Вал 4
  • Код: RC-219-785
  • Добавлено: 30.12.2025
  • Додати в обране
Тип ринку
Вторинний ринок
Вулиця
вул. Верхній Вал 4
Назначение
Офісне приміщення
Поверх
5 Поверх
Поверховість
5 поверховий будинок
Загальна площа
134 м2
Загальний стан
З ремонтом
Ціна:
75 000 грн.
1 776 USD
Опис об'єкту

Офісне приміщення. Оренда офісного приміщення у бізнес-центрі на Верхньому валу. Корисна площа – 134м2. (162 м2 – залікова). П'ятий поверх. Охорона, всі комунікації, метро Контрактова площа – 5 хвилин. Нова презентабельна будівля. Дизель-генератор. Вартість – 460 гр/м2 з ПДВ. Додатково оплачується лише електрика та опалення.

Схожі пропозиції