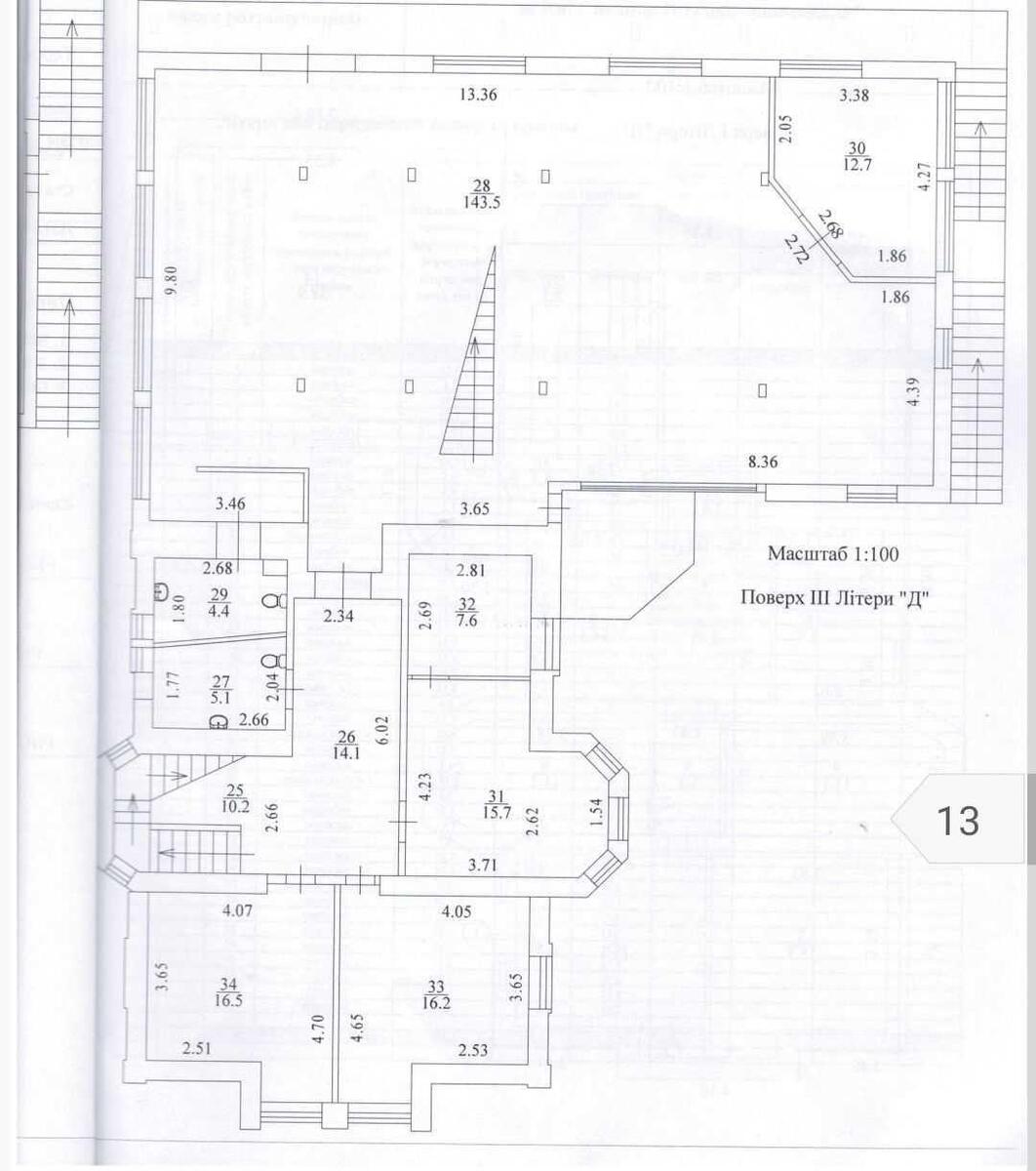
Office vul. Nyzhn'ojurkivs'ka 37, 254m2

  • Podilskyi District vul. Nyzhn'ojurkivs'ka 37
  • Code: RC-219-419
  • Added by: 17.12.2025
  • Add to favorites
Market type
Secondary market
Street
vul. Nyzhn'ojurkivs'ka 37
Purpose
Office Premise
Floor
2 Floor
Number of storeys
3 storey house
Total area
254 м2
General state
With repair
Price:
89 000 UAH
2 111 USD
Description of the object

Office space. 3 floors and an attic, office system and open space. An ideal offer for placing an office, medical or educational center, showroom, clinic, fitness studio, warehouse with an office or other commercial activity. Security, video surveillance. Convenient layout. T. Shevchenko metro station nearby, 10-15 minutes. Autonomous power supply when the power is off. Separate entrance. Parking lot. Communications are summarized. High pedestrian and car traffic.

Similar offers