Офіс вул. Набережно-Лугова 12, 180м2

  • Подільський район вул. Набережно-Лугова 12
  • Код: RC-219-824
  • Добавлено: 25.02.2026
  • Додати в обране
Тип ринку
Вторинний ринок
Вулиця
вул. Набережно-Лугова 12
Назначение
Офісне приміщення
Поверх
2 Поверх
Поверховість
5 поверховий будинок
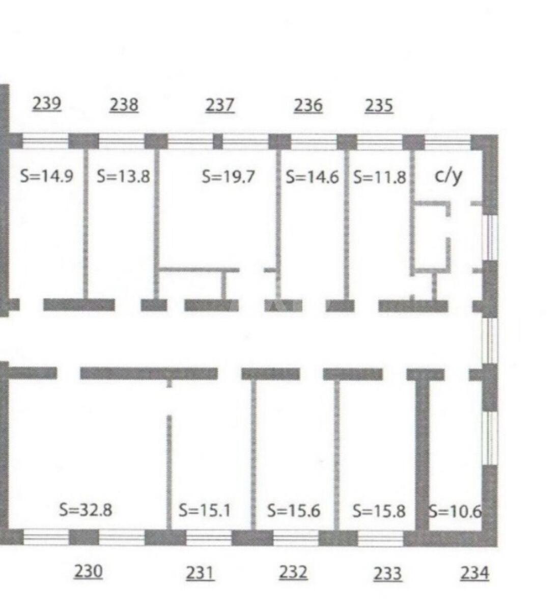
Загальна площа
180 м2
Загальний стан
З ремонтом
Ціна:
77 957 грн.
1 800 USD
Опис об'єкту

Офісне приміщення. Офіс в 5 хвилинах ходьби від Метро Тараса Шевченка. 2 поверх, 180м2. 9 кабінетів, 2 санвузли. За потреби, можна робити перепланування. В офісі виконаний ремонт, замінені електрокомунікації. До цього у приміщенні був благодійний фонд, всі меблі можуть прибрати, і навпаки - додати столи та стільці. Опалення входить у вартість, додатково тільки вода і світло по лічильниках. Є безкоштовний паркінг перед будівлею і також платна парковка (6-7 тисяч грн в РІК). Також є укриття та їдальня з дуже смачною їжею та демократичними цінами.

Схожі пропозиції