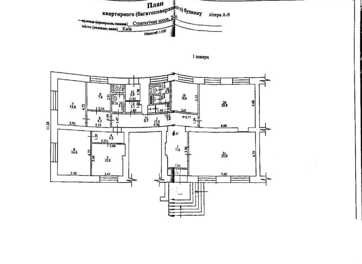
Офіс шосе Стратегічне 2А, 175м2

  • Голосіївський район шосе Стратегічне 2А
  • Код: SC-220-100
  • Добавлено: 25.02.2026
  • Додати в обране
Тип ринку
Вторинний ринок
Вулиця
шосе Стратегічне 2А
Назначение
Офісне приміщення
Поверх
1 Поверх
Поверховість
9 поверховий будинок
Загальна площа
175 м2
Загальний стан
З ремонтом
Ціна:
5 413 722 грн.
125 000 USD
Опис об'єкту

Офісне приміщення. Приміщення 175 кв,м, окремий вхід, підійде під любий вид діяльності, магазин, шоу-рум, салон краси, клініка, офіс, висока стеля, великі вікна, частково з ремонтом, великий санвузол з кабінками, доглянутий двір з парковкою, зручне транспортне сполучення, заїзд з проспекту Науки. До метро Демївська 15 хв пішки.

Схожі пропозиції