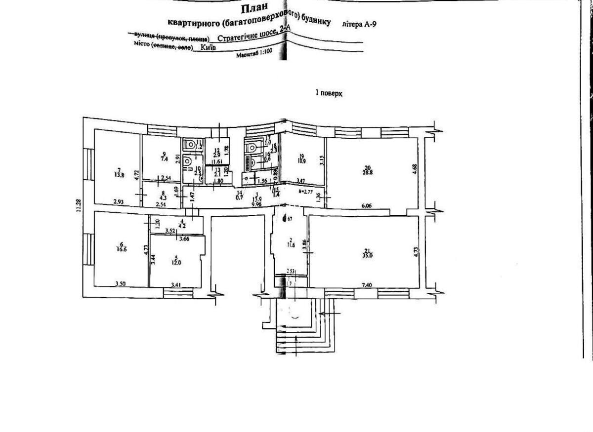
Office shose Strategichne 2А, 175m2

  • Holosiivskyi District shose Strategichne 2А
  • Code: SC-220-100
  • Added by: 25.02.2026
  • Add to favorites
Market type
Secondary market
Street
shose Strategichne 2А
Purpose
Office Premise
Floor
1 Floor
Number of storeys
9 storey house
Total area
175 м2
General state
With repair
Price:
5 413 722 UAH
125 000 USD
Description of the object

Office space. Premises 175 sq. m., separate entrance, suitable for any type of activity, shop, showroom, beauty salon, clinic, office, high ceilings, large windows, partially renovated, large bathroom with cubicles, well-kept courtyard with parking, convenient transport links, entrance from Nauky Avenue. 15 minutes walk to Demivska metro station.

Similar offers