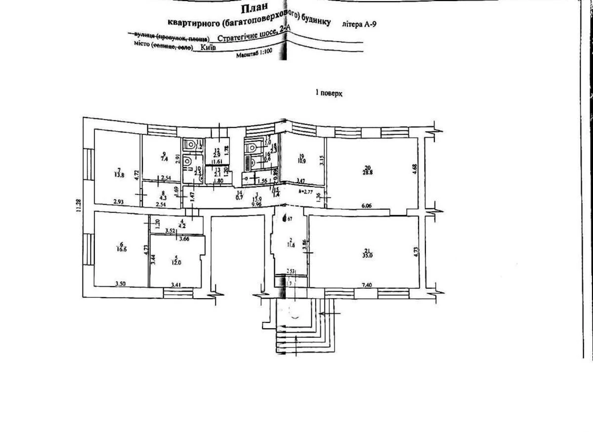
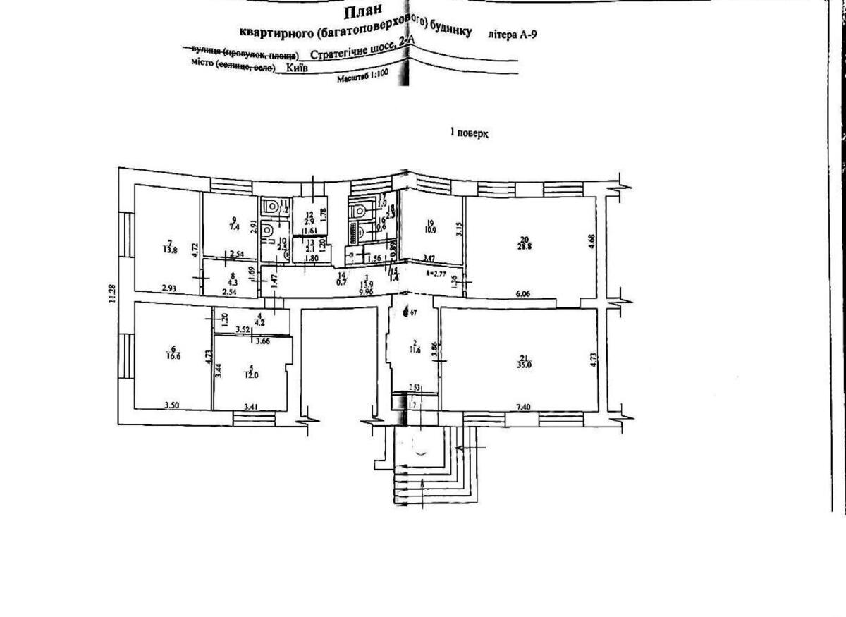
Офис шоссе Стратегическое 2А, 175м2

  • Голосеевский район шоссе Стратегическое 2А
  • Код: SC-220-100
  • Добавлено: 25.02.2026
  • Добавить в избранное
Тип рынка
Вторичный рынок
Улица
шоссе Стратегическое 2А
Призначення
Офисное помещение
Этаж
1 Этаж
Этажность
9 этажный дом
Общая площадь
175 м2
Общее состояние
С ремонтом
Цена:
5 413 722 грн.
125 000 USD
Описание объекта

Офисное помещение. Помещение 175 кв.м, отдельный вход, подойдет под любой вид деятельности, магазин, шоу-рум, салон красоты, клиника, офис, высокий потолок, большие окна, частично с ремонтом, большой санузел с кабинами, ухоженный двор с парковкой, удобное транспортное сообщение, заезд с проспекта Науки. До метро Демьевская 15 мин пешком.

Похожие предложения