Объект торговли ул. Виктора Некрасова 10, 126м2

  • Подольский район ул. Виктора Некрасова 10
  • Код: SC-222-822
  • Добавлено: 20.03.2026
  • Добавить в избранное
Тип рынка
Вторичный рынок
Улица
ул. Виктора Некрасова 10
Призначення
Торговое помещение
Этаж
1 Этаж
Этажность
24 этажный дом
Общая площадь
126 м2
Общее состояние
Без ремонта
Цена:
14 909 153 грн.
339 000 USD
Описание объекта

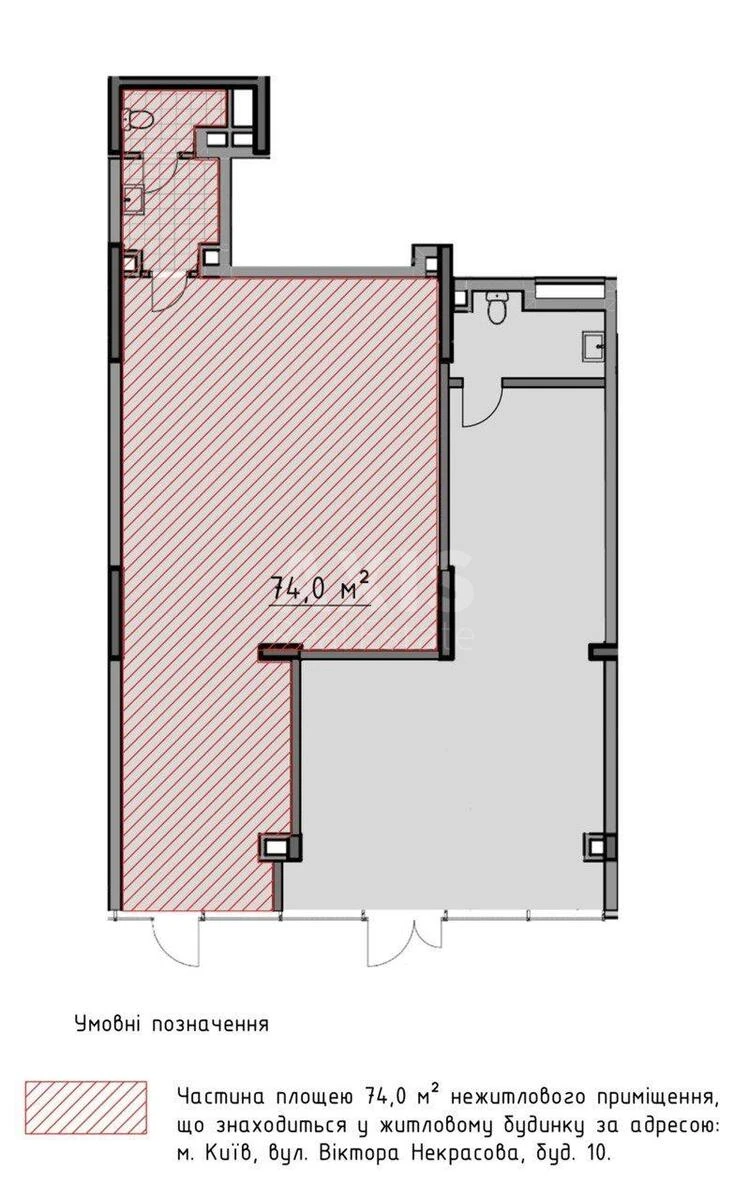
ЖК «ДИБРОВА ПАРК», помещение свободного назначения. Помещение общей площадью 125 м² разделено на две независимые части площадью 51 и 74 м² с отдельными входными дверями. Помещение площадью 51 м² (сдано в аренду), электросеть — 16,5 кВт, высота потолка — 3,7 м, индивидуальный вентиляционный канал. Помещение площадью 74 м², электросеть — 21 кВт, высота потолка — 3,7 м, индивидуальный вентиляционный канал.

Похожие предложения