Объект торговли наб. Днепровская 20А, 108м2

  • Дарницкий район наб. Днепровская 20А
  • Код: SC-222-819
  • Добавлено: 26.05.2026
  • Добавить в избранное
Тип рынка
Вторичный рынок
Улица
наб. Днепровская 20А
Призначення
Торговое помещение
Этаж
1 Этаж
Этажность
25 этажный дом
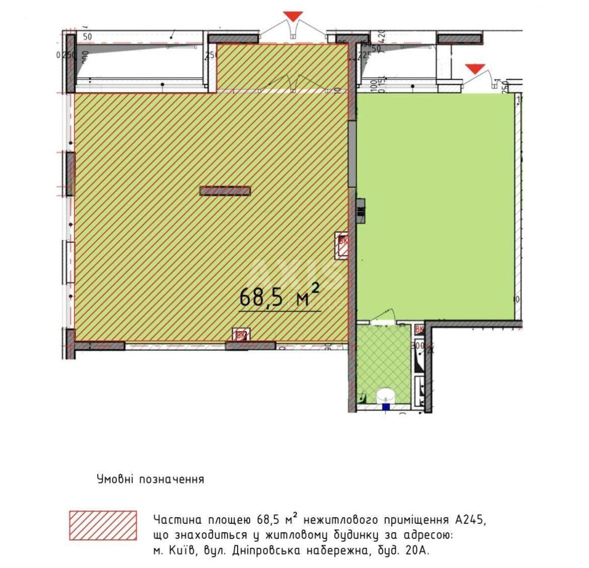
Общая площадь
108 м2
Общее состояние
С ремонтом
Цена:
17 765 003 грн.
401 500 USD
Описание объекта

ЖК «Севен», помещение свободного назначения. Фасад на углу ЖК. Первый дом от метро. До ст. м. «Осокорки» — 200 метров. Объект разделен на два помещения площадью 68 м² и 40 м². В каждом помещении есть отдельный вход и санузел.

Похожие предложения