Об'єкт торгівлі вул. Віктора Некрасова 10, 126м2

  • Подільський район вул. Віктора Некрасова 10
  • Код: SC-222-822
  • Добавлено: 20.03.2026
  • Додати в обране
Тип ринку
Вторинний ринок
Вулиця
вул. Віктора Некрасова 10
Назначение
Торгове приміщення
Поверх
1 Поверх
Поверховість
24 поверховий будинок
Загальна площа
126 м2
Загальний стан
Без ремонту
Ціна:
14 909 153 грн.
339 000 USD
Опис об'єкту

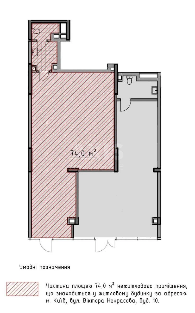
ЖК «ДІБРОВА ПАРК», приміщення вільного призначення. Приміщення загальною площею 125 м2 поділено на дві незалежні частини площами 51 та 74 м2 з окремими вхідними дверима. Приміщення площею 51 м2 (сдано в аренду), електромережа - 16,5 кВт, висота стелі - 3,7 м, індивідуальний вентиляційний канал. Приміщення площею 74 м2, електромережа - 21 кВт, висота стелі - 3,7 м, індивідуальний вентиляційний канал.

Схожі пропозиції