Trade object vul. Viktora Nekrasova 10, 126m2

  • Podilskyi District vul. Viktora Nekrasova 10
  • Code: SC-222-822
  • Added by: 20.03.2026
  • Add to favorites
Market type
Secondary market
Street
vul. Viktora Nekrasova 10
Purpose
Trade Premise
Floor
1 Floor
Number of storeys
24 storey house
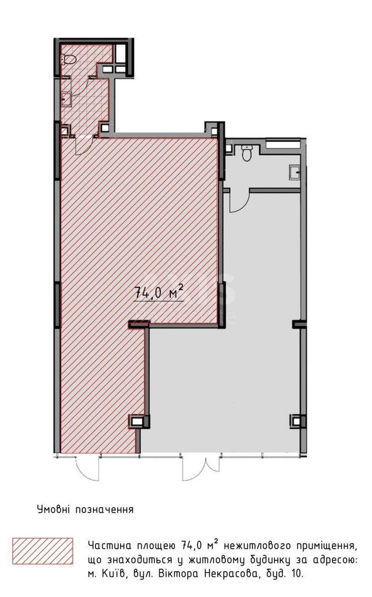
Total area
126 м2
General state
Without repair
Price:
14 909 153 UAH
339 000 USD
Description of the object

‘DIBROVA PARK’ residential complex, multi-purpose premises. The premises, with a total area of 125 m², are divided into two separate sections measuring 51 m² and 74 m² respectively, each with its own entrance. The 51 m² unit (currently let) has a power supply of 16.5 kW, a ceiling height of 3.7 m and a dedicated ventilation duct. The 74 m² unit has a 21 kW power supply, a ceiling height of 3.7 m and a dedicated ventilation duct.

Similar offers