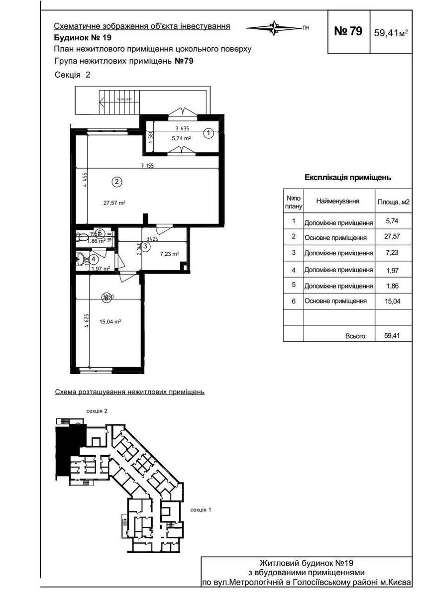
Объект торговли ул. Метрологическая 21, 59м2

  • Голосеевский район ул. Метрологическая 21
  • Код: RC-223-497
  • Добавлено: 23.05.2026
  • Добавить в избранное
Тип рынка
Вторичный рынок
Улица
ул. Метрологическая 21
Призначення
Торговое помещение
Этаж
1 Этаж
Этажность
9 этажный дом
Общая площадь
59 м2
Общее состояние
Без ремонта
Цена:
27 500 грн.
621 USD
Описание объекта

ЖК «Кристальные источники», помещения свободного назначения. Есть возможность размещения наружной рекламы. Проводим ремонт помещений под арендатора — базовый или индивидуальный, по договоренности. Аренда коммерческих помещений напрямую от застройщика. Доступны помещения различной площади, планировки и функционального назначения: под офисы, сервис, торговлю, студии, склады и другие направления.

Похожие предложения