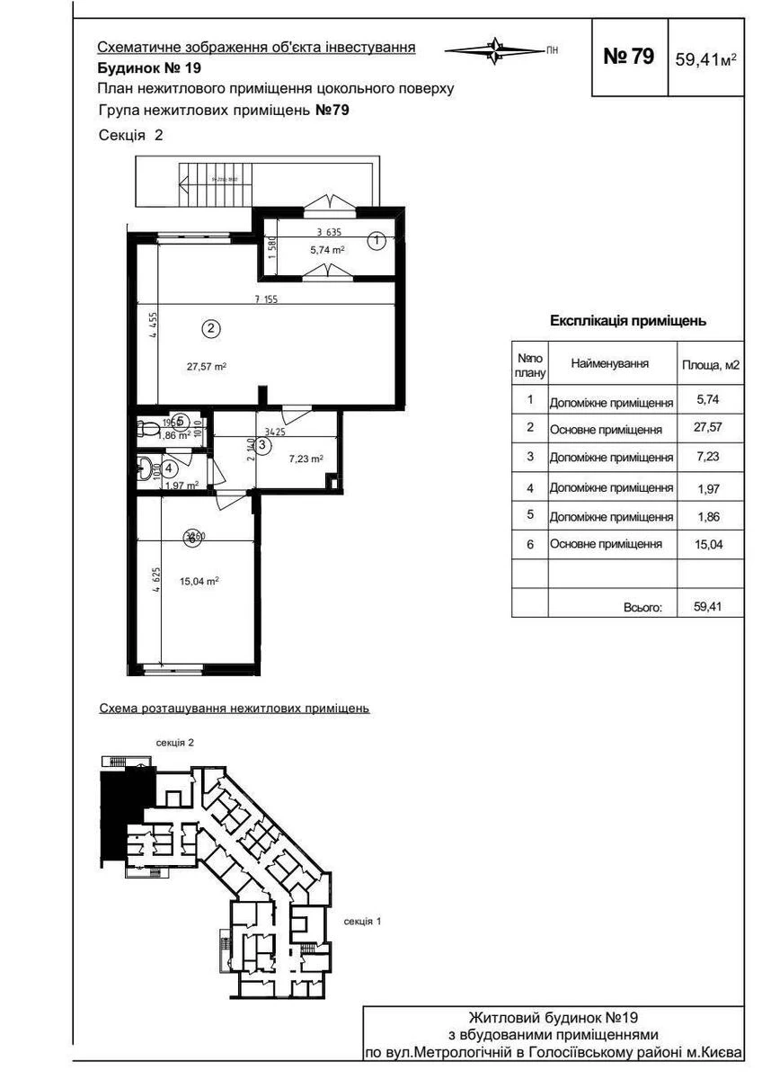
Trade object vul. Metrologichna 21, 59m2

  • Holosiivskyi District vul. Metrologichna 21
  • Code: RC-223-497
  • Added by: 23.05.2026
  • Add to favorites
Market type
Secondary market
Street
vul. Metrologichna 21
Purpose
Trade Premise
Floor
1 Floor
Number of storeys
9 storey house
Total area
59 м2
General state
Without repair
Price:
27 500 UAH
621 USD
Description of the object

‘Crystal Springs’ residential complex, premises for flexible use. Outdoor advertising is permitted. We can carry out refurbishment of the premises to suit the tenant’s requirements, either basic or bespoke, by arrangement. Rent commercial premises directly from the developer. Premises of various sizes, layouts and functional purposes are available: for offices, services, retail, studios, warehouses and other uses.

Similar offers