Объект торговли ул. Вышгородская 44, 224м2

  • Оболонский район ул. Вышгородская 44
  • Код: RC-223-495
  • Добавлено: 31.05.2026
  • Добавить в избранное
Тип рынка
Вторичный рынок
Улица
ул. Вышгородская 44
Призначення
Торговое помещение
Этаж
1 Этаж
Этажность
5 этажный дом
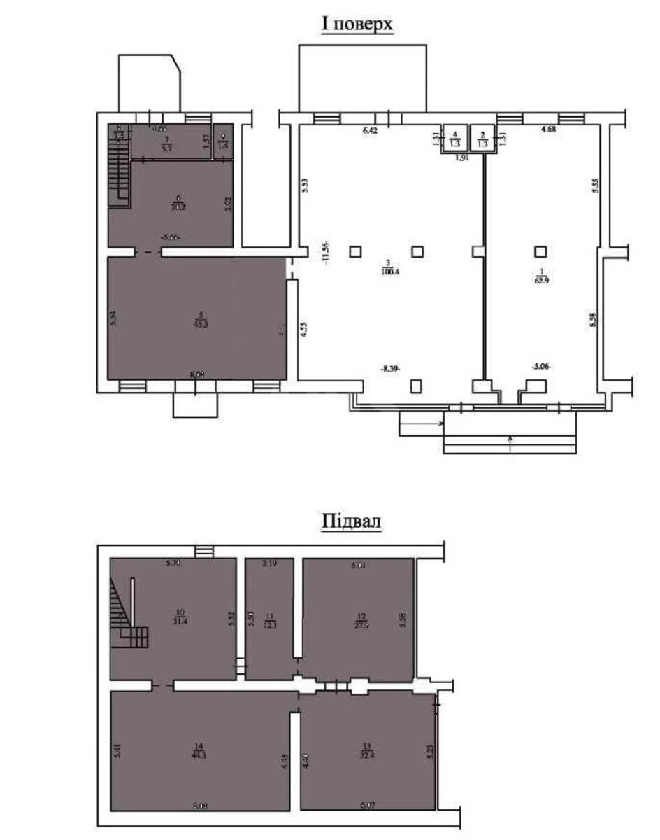
Общая площадь
224 м2
Общее состояние
С ремонтом
Цена:
155 000 грн.
3 500 USD
Описание объекта

Помещение свободного назначения. Подвал: 148,1 м² (склад / рабочая зона). 2 отдельных входа. Высота потолка: 3,5 м. Мощность: 40 кВт. Возможность установки генератора. Имеется рампа для удобной погрузки/ разгрузки.

Похожие предложения