Офис пр-т Берестейский 42, 220м2

  • Шевченковский район пр-т Берестейский 42
  • Код: SC-221-628
  • Добавлено: 23.02.2026
  • Добавить в избранное
Тип рынка
Вторичный рынок
Улица
пр-т Берестейский 42
Призначення
Офисное помещение
Этаж
21 Этаж
Этажность
22 этажный дом
Общая площадь
220 м2
Общее состояние
С ремонтом
Цена:
43 303 990 грн.
1 000 000 USD
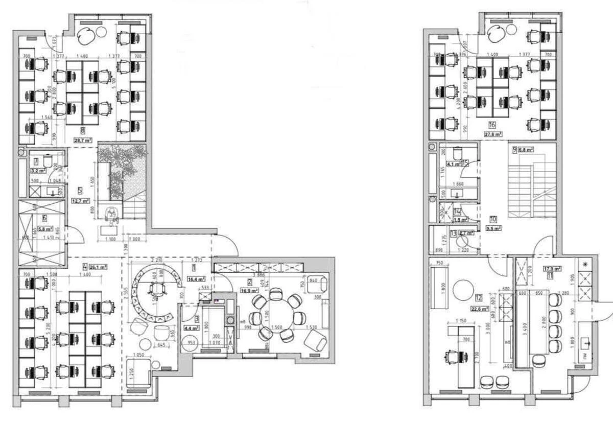
Описание объекта

ЖК Crystal Park Tower, офисное помещение. Пространство дополнено собственной террасой с панорамой на Киев, что создает уникальную атмосферу и повышает инвестиционную привлекательность объекта. Рецепция. 33 рабочих места. Кабинет руководителя. Переговорная комната. Skype room. Гардеробная комната. 2 санузла. Кухня. Установлен генератор. Собственная терраса с видом на Киев.

Похожие предложения