Office pr-t Berestejskij 42, 220m2

  • Shevchenkivskyi District pr-t Berestejskij 42
  • Code: SC-221-628
  • Added by: 23.02.2026
  • Add to favorites
Market type
Secondary market
Street
pr-t Berestejskij 42
Purpose
Office Premise
Floor
21 Floor
Number of storeys
22 storey house
Total area
220 м2
General state
With repair
Price:
43 303 990 UAH
1 000 000 USD
Description of the object

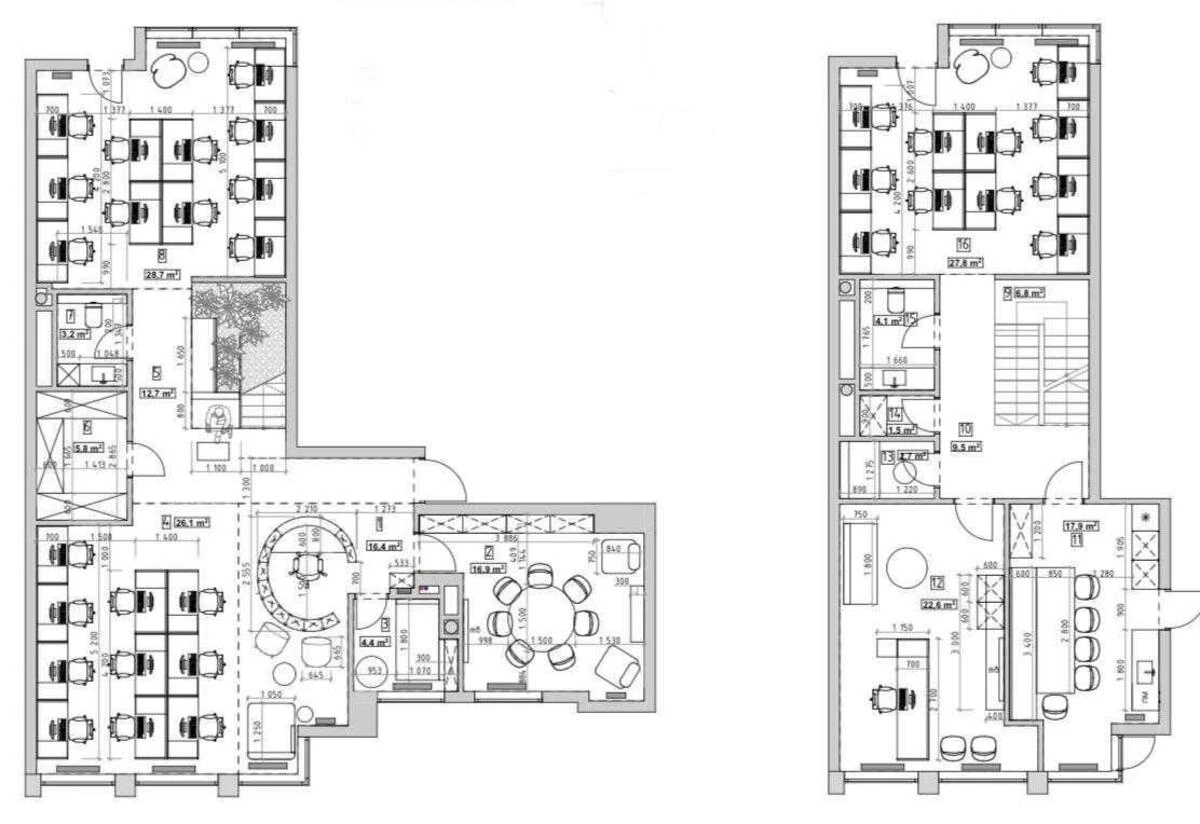
Crystal Park Tower residential complex, office space. The space is complemented by a private terrace with a panoramic view of Kyiv, which creates a unique atmosphere and increases the investment attractiveness of the property. Reception. 33 workstations. Executive office. Meeting room. Skype room. Cloakroom. 2 bathrooms. Kitchen. Generator installed. Private terrace with a view of Kyiv.

Similar offers