Офіс пр-т Берестейський 42, 220м2

  • Шевченківський район пр-т Берестейський 42
  • Код: SC-221-628
  • Добавлено: 23.02.2026
  • Додати в обране
Тип ринку
Вторинний ринок
Вулиця
пр-т Берестейський 42
Назначение
Офісне приміщення
Поверх
21 Поверх
Поверховість
22 поверховий будинок
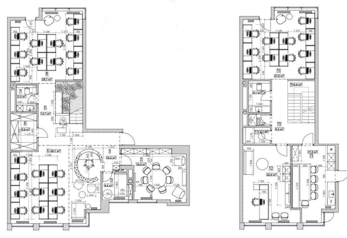
Загальна площа
220 м2
Загальний стан
З ремонтом
Ціна:
43 303 990 грн.
1 000 000 USD
Опис об'єкту

ЖК Crystal Park Tower, офісне приміщення. Простір доповнений власною терасою з панорамою на Київ, що створює унікальну атмосферу та підвищує інвестиційну привабливість об’єкта. Рецепція. 33 робочих місця. Кабінет керівника. Переговорна кімната. Skype room. Гардеробна кімната. 2 санвузли. Кухня. Встановлено генератор. Власна тераса з видом на Київ.

Схожі пропозиції