Офис ул. Евгения Коновальца 36Б, 925м2

  • Печерский район ул. Евгения Коновальца 36Б
  • Код: SC-223-454
  • Добавлено: 31.05.2026
  • Добавить в избранное
Тип рынка
Вторичный рынок
Улица
ул. Евгения Коновальца 36Б
Призначення
Офисное помещение
Этаж
1 Этаж
Этажность
2 этажный дом
Общая площадь
925 м2
Общее состояние
С ремонтом
Цена:
79 703 670 грн.
1 800 000 USD
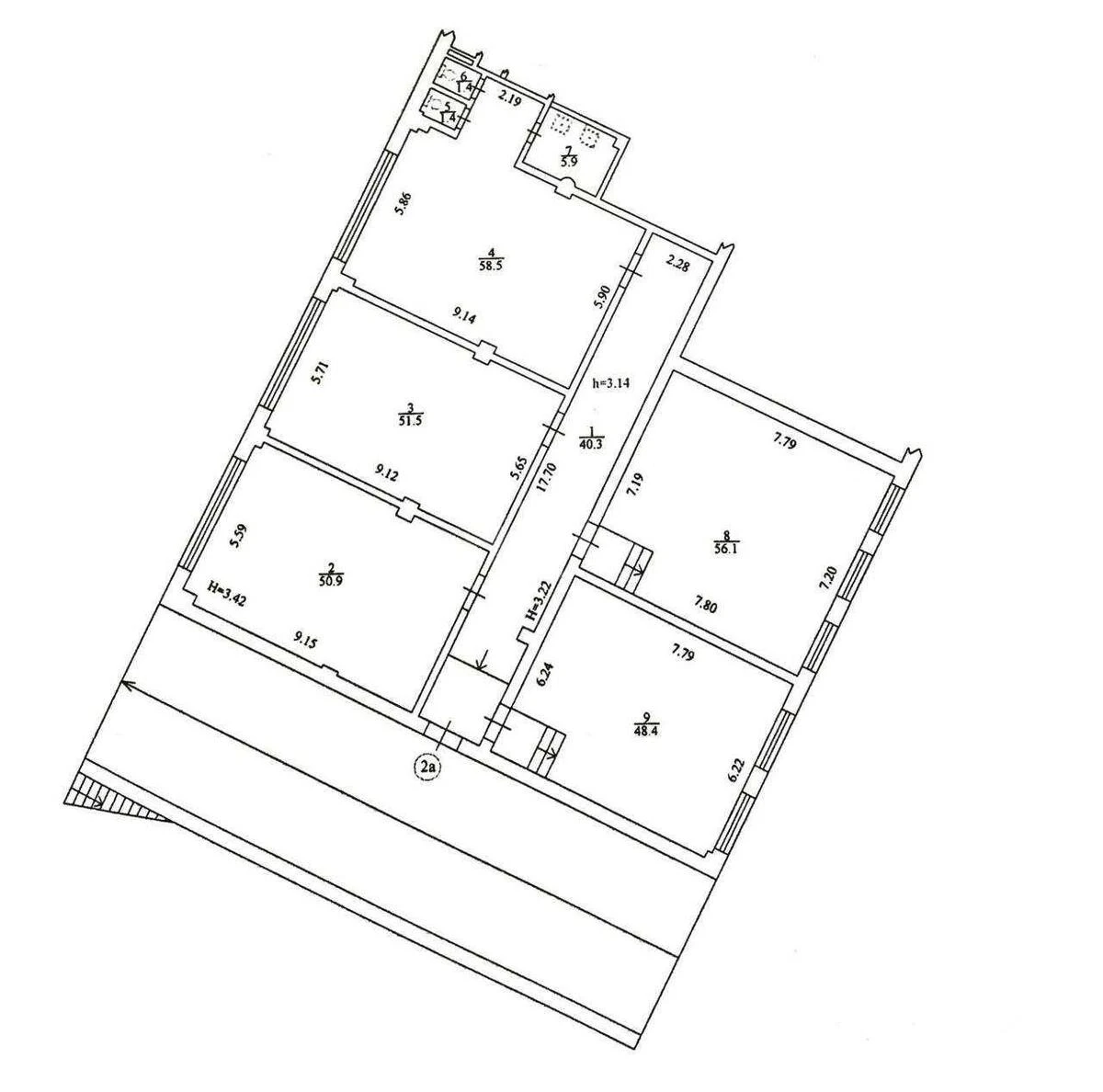
Описание объекта

Офисное помещение. Два этажа, смешанная планировка. Совершен современный ремонт. Высота потолка — 3,8 м. Несколько санузлов, кухня, подсобные помещения. Отдельные входы. Тип стен — кирпич. Офис оснащен системой центрального кондиционирования. Парковка — перед зданием.

Похожие предложения