Trade object vul. Vyshgorods'ka 44, 224m2

  • Obolonskyi District vul. Vyshgorods'ka 44
  • Code: RC-223-495
  • Added by: 31.05.2026
  • Add to favorites
Market type
Secondary market
Street
vul. Vyshgorods'ka 44
Purpose
Trade Premise
Floor
1 Floor
Number of storeys
5 storey house
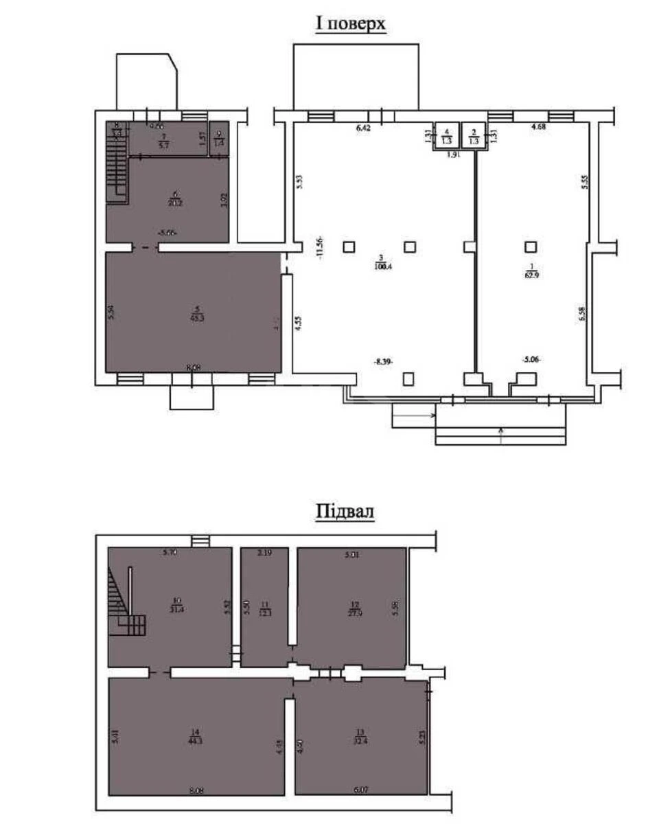
Total area
224 м2
General state
With repair
Price:
155 000 UAH
3 500 USD
Description of the object

Multi-purpose premises. Basement: 148.1 m² (storage/work area). 2 separate entrances. Ceiling height: 3.5 m. Power capacity: 40 kW. Option to install a generator. Loading bay available for convenient loading/ unloading.

Similar offers