Об'єкт торгівлі вул. Сосюри Володимира 6, 122м2

  • Дніпровський район вул. Сосюри Володимира 6
  • Код: SC-217-274
  • Добавлено: 30.10.2025
  • Додати в обране
Тип ринку
Вторинний ринок
Вулиця
вул. Сосюри Володимира 6
Назначение
Торгове приміщення
Поверх
1 Поверх
Поверховість
26 поверховий будинок
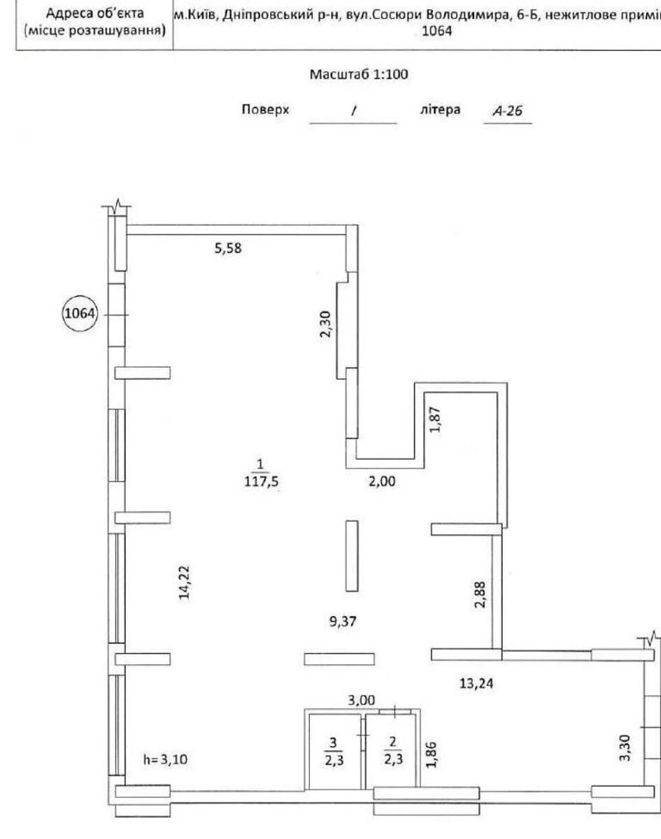
Загальна площа
122 м2
Загальний стан
Без ремонту
Ціна:
8 056 902 грн.
190 000 USD
  • AXIS Real Estate
  • AXIS Real Estate
  • AXIS Real Estate
Опис об'єкту

ЖК «Дніпровська мрія», приміщення вільного призначення. ДВА окремі входи: з боку вулиці та з боку двору зручно для потоків клієнтів/персоналу, формату take away або розділення зон. Фасадні панорамні вікна гарний огляд і місце під яскраву вивіску. Відкрите планування легко зонувати під шоурум, зал, кабінети чи reception. Комунікації заведені: вода, каналізація, опалення (радіатори встановлені), електрощит у приміщенні; первинні датчики пожежної сигналізації на стелі. Перший поверх новобудови поруч щільна житлова забудова, внутрішні алеї та прохідна зона комплексу.

Додаткова інформація