Продажа
 
              
                 
                Все фото (8)
              
              
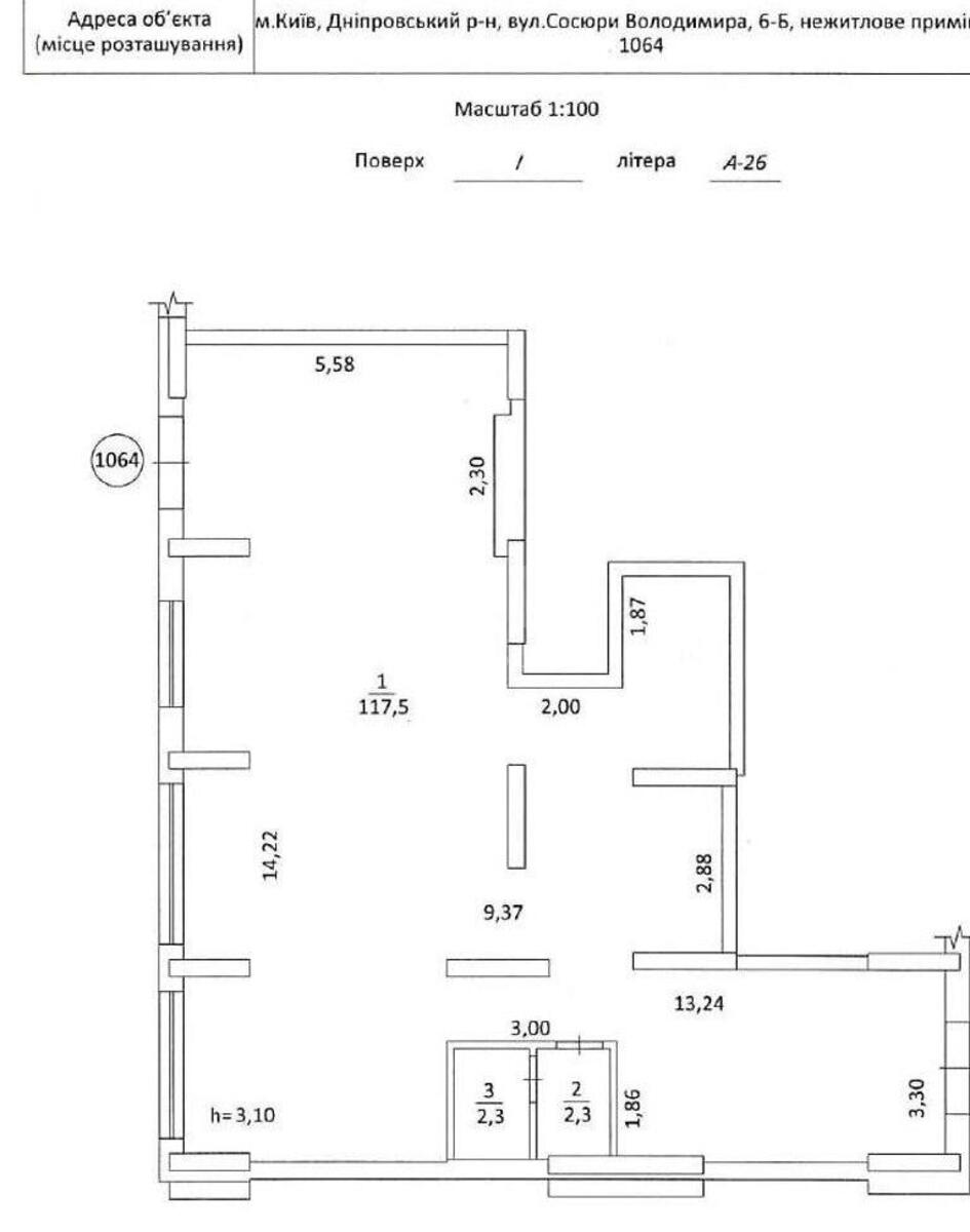
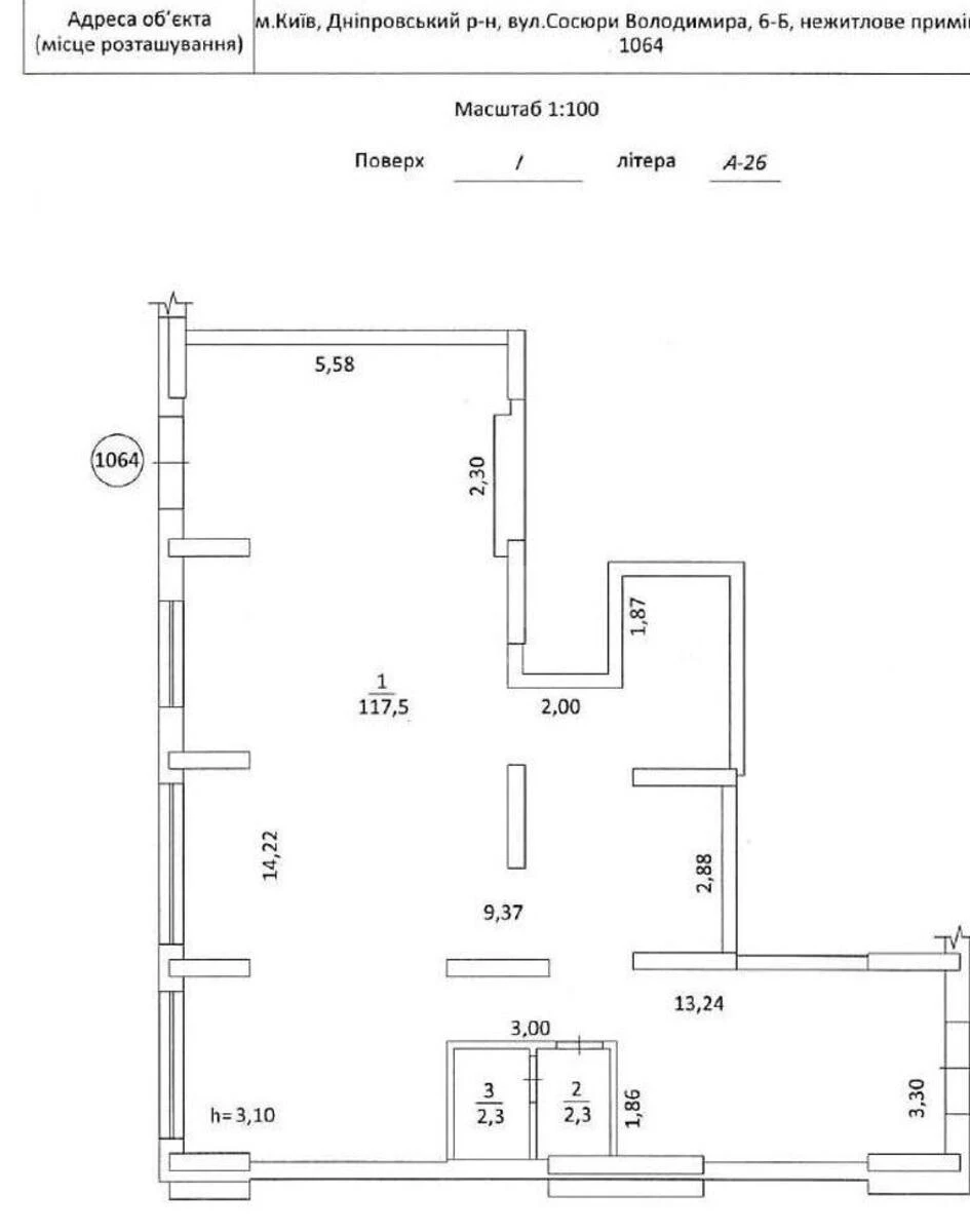
          Объект торговли ул. Сосюры Владимира 6, 122м2
- Добавить в избранное
- 
              Поделиться ссылкой
Тип рынка
                Вторичный рынок
              Улица
                
                  ул. Сосюры Владимира 6
              Призначення
                Торговое помещение
              Этаж
                1 Этаж
              Этажность
                26 этажный дом
                
              Общая площадь
                122 м2
              Общее состояние
                Без ремонта
              Цена:
              7 981 154 грн.
              190 000 USD
            Описание объекта
          ЖК "Днепровская мечта", помещение свободного назначения. ДВА отдельных входа: со стороны улицы и со стороны двора удобно для потоков клиентов/персонала, формата take away или разделения зон. Фасадные панорамные окна хороший обзор и место под яркую вывеску. Открытая планировка легко зонировать под шоурум, зал, кабинеты или reception. Коммуникации заведены: вода, канализация, отопление (радиаторы установлены), электрощит в помещении; первичные датчики пожарной сигнализации на потолке. Первый этаж новостройки рядом плотная жилая застройка, внутренние аллеи и проходная зона комплекса.
Дополнительная информация
           
                   
                   
                   
                   
                   
                  