Sell
 
              
                 
                All photos (8)
              
              
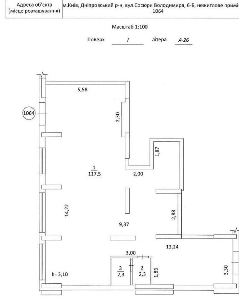
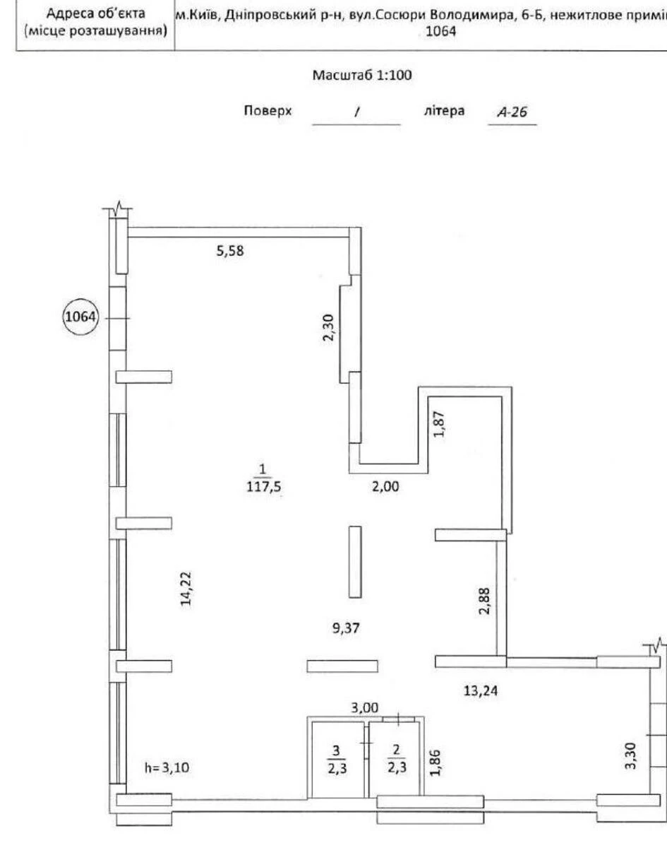
          Trade object vul. Sosjury Volodymyra 6, 122m2
- Add to favorites
- 
              Share link
Market type
                Secondary market
              Street
                
                  vul. Sosjury Volodymyra 6
              Purpose
                Trade Premise
              Floor
                1 Floor
              Number of storeys
                26 storey house
                
              Total area
                122 м2
              General state
                Without repair
              Price:
              7 981 154 UAH
              190 000 USD
            Description of the object
          Dniprovska Mriya residential complex, free-use premises. TWO separate entrances: from the street and from the yard, convenient for customer/staff flows, take away format or separation of zones. Facade panoramic windows provide a good overview and a place for a bright sign. The open plan can be easily zoned for a showroom, hall, offices or reception. Communications are in place: water, sewerage, heating (radiators are installed), electrical panel in the room; primary fire alarm sensors on the ceiling. The ground floor of the new building is located near dense residential buildings, internal alleys and the passage area of the complex.
Additional Information
           
                   
                   
                   
                   
                   
                  