Об'єкт торгівлі вул. Скоропадського Павла 51/102, 77м2

  • Голосіївський район вул. Скоропадського Павла 51/102
  • Код: SC-219-607
  • Добавлено: 25.02.2026
  • Додати в обране
Тип ринку
Вторинний ринок
Вулиця
вул. Скоропадського Павла 51/102
Назначение
Торгове приміщення
Поверх
1 Поверх
Поверховість
6 поверховий будинок
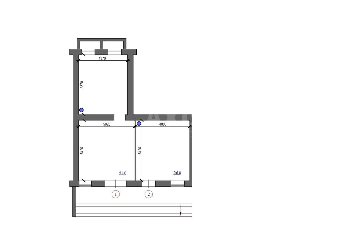
Загальна площа
77 м2
Загальний стан
Без ремонту
Ціна:
20 009 118 грн.
462 000 USD
Опис об'єкту

Приміщення вільного призначення. Основні характеристики: Площа – 77 м2. Перший поверх. Вітринні вікна. Стан – з ремонтом. Наявні всі комунікації. Є можливість розміщення зовнішньої реклами. Великий попит на оренду фасадних приміщень в даній локації. Ліквідний актив з можливістю росту вартості.

Схожі пропозиції