Объект торговли ул. Скоропадского Павла 51/102, 77м2

  • Голосеевский район ул. Скоропадского Павла 51/102
  • Код: SC-219-607
  • Добавлено: 25.02.2026
  • Добавить в избранное
Тип рынка
Вторичный рынок
Улица
ул. Скоропадского Павла 51/102
Призначення
Торговое помещение
Этаж
1 Этаж
Этажность
6 этажный дом
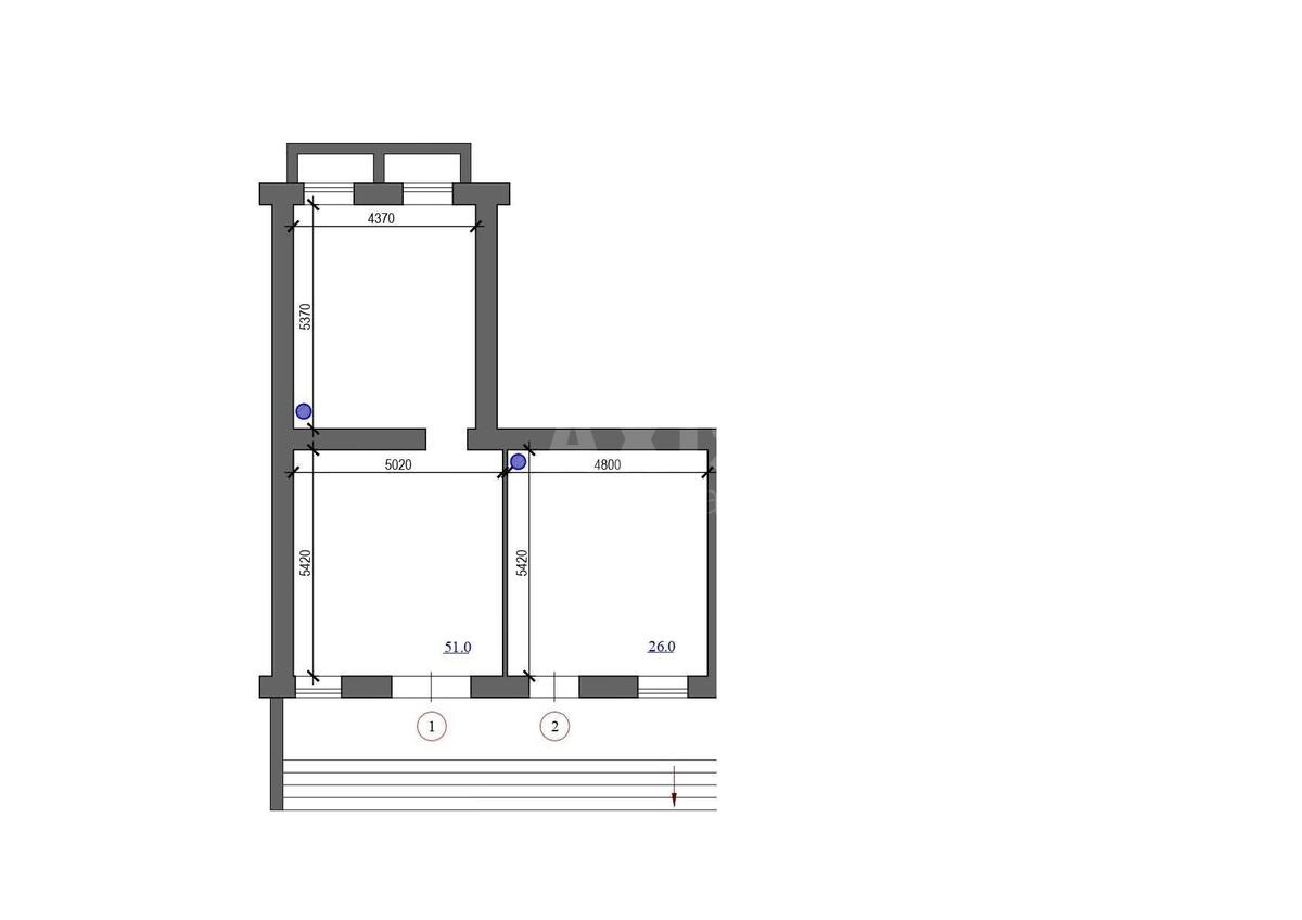
Общая площадь
77 м2
Общее состояние
Без ремонта
Цена:
20 009 118 грн.
462 000 USD
Описание объекта

Помещение свободного назначения. Основные характеристики: Площадь - 77 м2. Первый этаж. Витринные окна. Состояние - с ремонтом. Имеются все коммуникации. Есть возможность размещения наружной рекламы. Большой спрос на аренду фасадных помещений в данной локации. Ликвидный актив с возможностью роста стоимости.

Похожие предложения