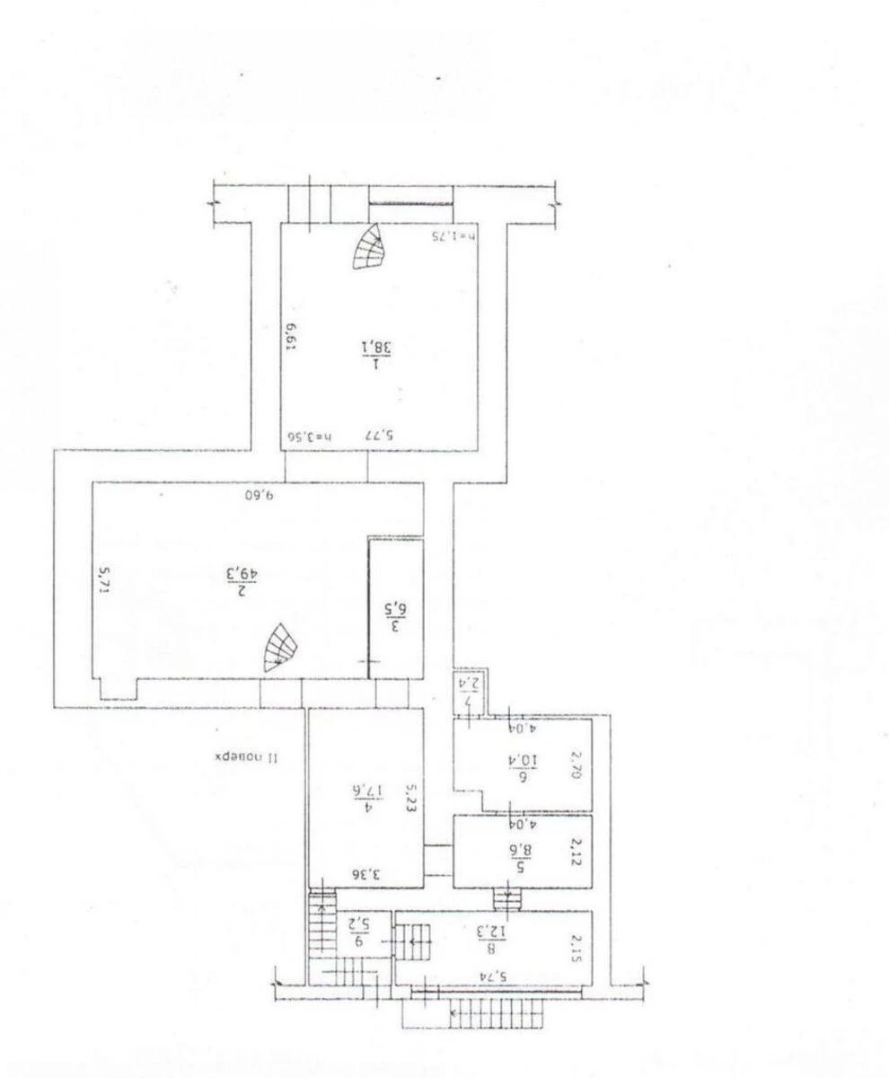
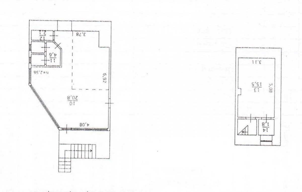
Об'єкт торгівлі вул. Сагайдачного Петра 10, 220м2

  • Подільський район вул. Сагайдачного Петра 10
  • Код: RC-221-281
  • Добавлено: 14.02.2026
  • Додати в обране
Тип ринку
Вторинний ринок
Вулиця
вул. Сагайдачного Петра 10
Назначение
Торгове приміщення
Поверх
1 Поверх
Поверховість
1 поверховий будинок
Загальна площа
220 м2
Загальний стан
З ремонтом
Ціна:
130 000 грн.
3 023 USD
Опис об'єкту

Приміщення вільного призначення. Презентабельний фасад з великою вітриною, висока стеля, зручне планування. Ремонт після закладу харчування. Всі комунікації. Потужність 30 кВт. Гарна локація з постійним високим трафіком людей та авто. Поряд метро Поштова площа, Річковий порт, Контрактова площа.

Схожі пропозиції