Офіс пр-т Голосіївський 93, 363м2

  • Голосіївський район пр-т Голосіївський 93
  • Код: RC-221-302
  • Добавлено: 14.02.2026
  • Додати в обране
Тип ринку
Вторинний ринок
Вулиця
пр-т Голосіївський 93
Назначение
Офісне приміщення
Поверх
1 Поверх
Поверховість
7 поверховий будинок
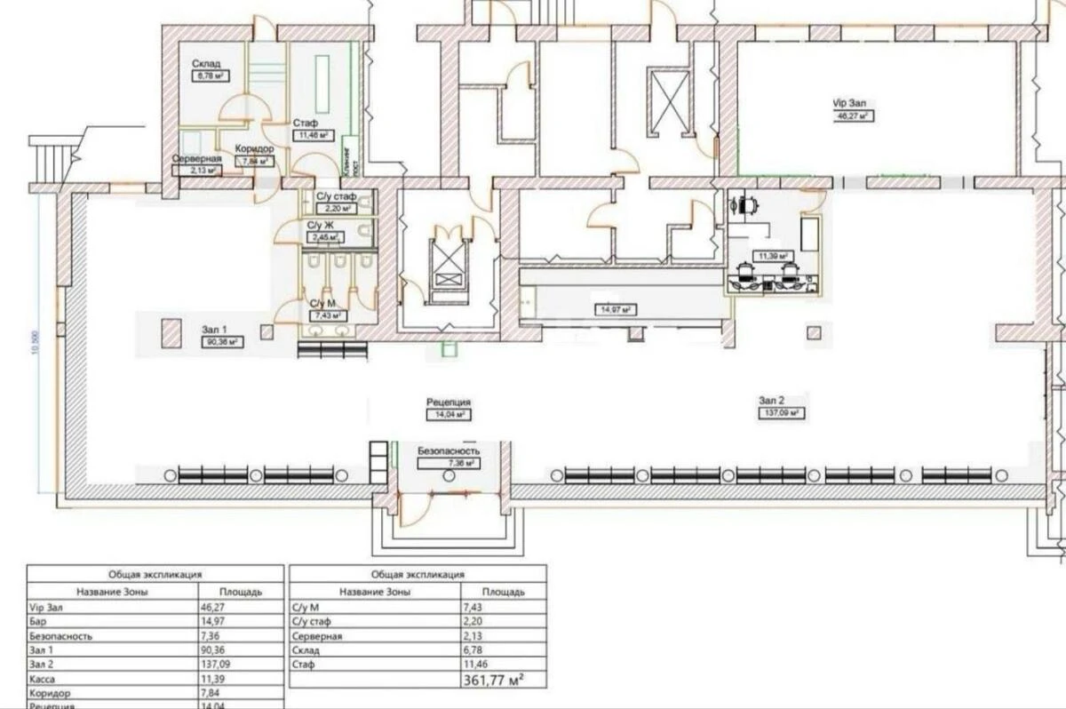
Загальна площа
363 м2
Загальний стан
З ремонтом
Ціна:
182 000 грн.
4 232 USD
Опис об'єкту

Приміщення вільного призначення. Цокольне приміщення зі зручним окремим входом, відмінний скляний фасад з якого відкривається вид на Голосіївський проспект з інтенсивним потоком автомобілів і пішоходів. Поруч знаходяться: готель, автосалон Renault/Nissan Голосіївський, офісний центр, банки, університет, житлові квартали, супермаркети, до станції метро 900 метрів. Інженерні комунікації: електрика, опалення, водопостачання, водовідведення.

Схожі пропозиції