Trade object vul. Sagajdachnogo Petra 10, 220m2

  • Podilskyi District vul. Sagajdachnogo Petra 10
  • Code: RC-221-281
  • Added by: 14.02.2026
  • Add to favorites
Market type
Secondary market
Street
vul. Sagajdachnogo Petra 10
Purpose
Trade Premise
Floor
1 Floor
Number of storeys
1 storey house
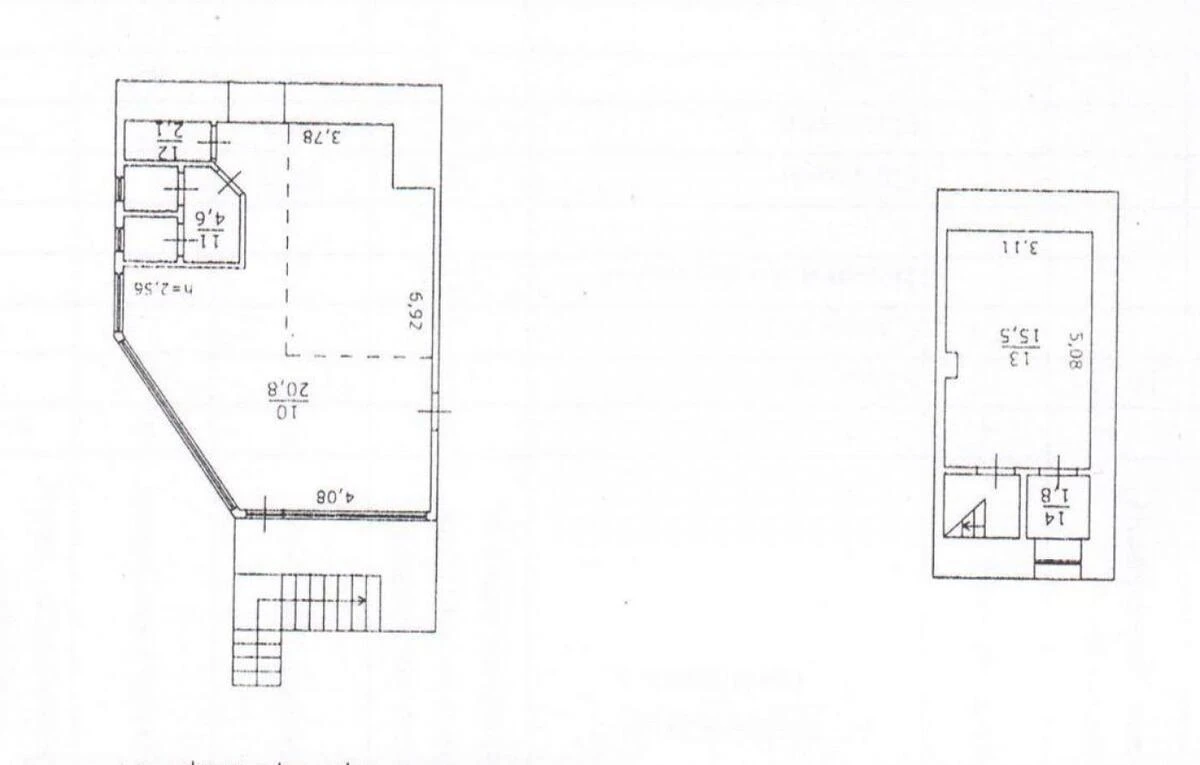
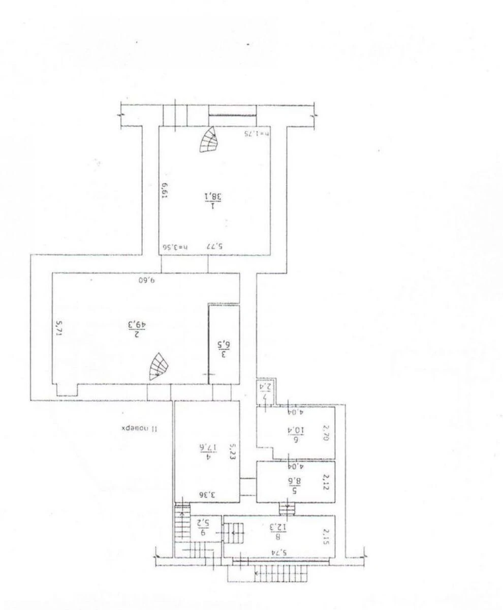
Total area
220 м2
General state
With repair
Price:
130 000 UAH
3 023 USD
Description of the object

Premises for free use. Presentable facade with a large display window, high ceilings, convenient layout. Renovated after a catering establishment. All communications. Power 30 kW. Good location with constant high traffic of people and cars. Near the Poshtova Ploshcha metro station, River Port, Kontraktova Ploshcha.

Similar offers