Об'єкт торгівлі вул. Преображенська 40, 33м2

  • Солом'янський район вул. Преображенська 40
  • Код: RC-217-116
  • Добавлено: 28.10.2025
  • Додати в обране
Тип ринку
Вторинний ринок
Вулиця
вул. Преображенська 40
Назначение
Торгове приміщення
Поверх
1 Поверх
Поверховість
9 поверховий будинок
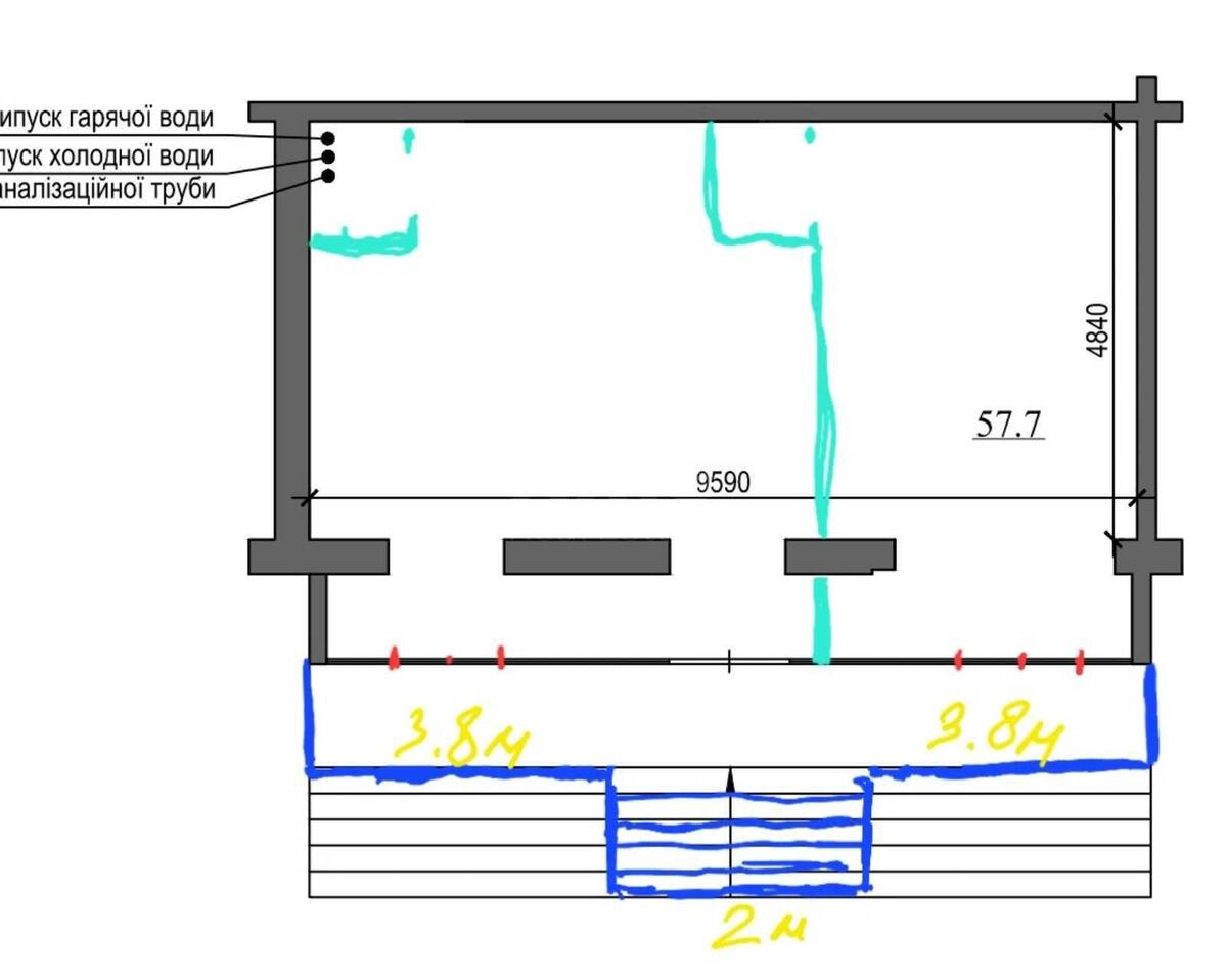
Загальна площа
33 м2
Загальний стан
З ремонтом
Ціна:
30 000 грн.
713 USD
  • AXIS Real Estate
  • AXIS Real Estate
  • AXIS Real Estate
Опис об'єкту

Приміщення вільного призначення. Світлофорами. Нежитловий фонд. Всі комунікації заведені. Всі моменти готові проговорювати. Літня площадка. Постійна присутність та насичений трафік людей Поруч Фора, Нова Почта, Школа, переходи та світлофори, Бадьорий, Аврора, ЖК на Преображенській, Парк, АТБ.

Додаткова інформація

Схожі пропозиції