Trade object vul. Preobrazhens'ka 40, 33m2

  • Solomianskyi District vul. Preobrazhens'ka 40
  • Code: RC-217-116
  • Added by: 28.10.2025
  • Add to favorites
Market type
Secondary market
Street
vul. Preobrazhens'ka 40
Purpose
Trade Premise
Floor
1 Floor
Number of storeys
9 storey house
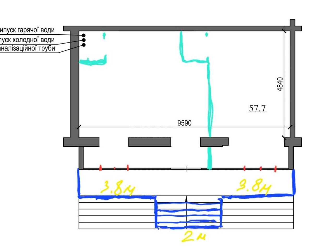
Total area
33 м2
General state
With repair
Price:
30 000 UAH
713 USD
  • AXIS Real Estate
  • AXIS Real Estate
  • AXIS Real Estate
Description of the object

Premises for free use. With traffic lights. Non-residential fund. All communications are established. All points are ready to be discussed. Summer terrace. Constant presence and heavy traffic of people Near Fora, Nova Poshta, School, crosswalks and traffic lights, Vigorous, Aurora, residential complex on Preobrazhenska, Park, ATB.

Additional Information

Similar offers