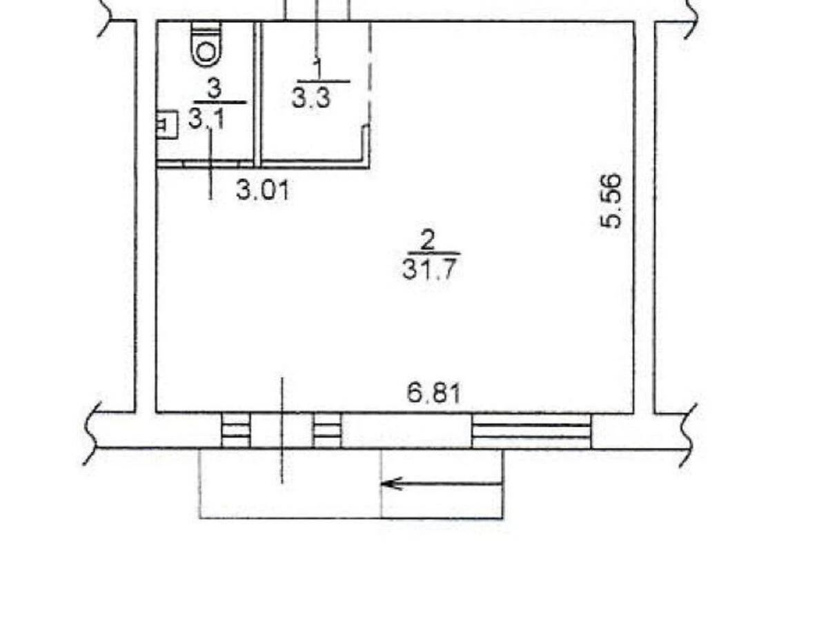
Об'єкт торгівлі вул. Головка Андрія 29, 38м2

  • Солом'янський район вул. Головка Андрія 29
  • Код: RC-209-745
  • Добавлено: 14.05.2025
  • Додати в обране
Тип ринку
Вторинний ринок
Вулиця
вул. Головка Андрія 29
Назначение
Торгове приміщення
Поверх
1 Поверх
Поверховість
5 поверховий будинок
Загальна площа
38 м2
Загальний стан
З ремонтом
Ціна:
30 000 грн.
713 USD
  • AXIS Real Estate
  • AXIS Real Estate
  • AXIS Real Estate
Опис об'єкту

Приміщення вільного призначення. Фасадне комерційне приміщення під будь який вид діяльності. Вільне. Двері та вікна: захисні ролети на дверях. Опалення: централізоване. Обладнання меблі зручності: електрика. Гарна та зручна локація.

Додаткова інформація

Схожі пропозиції