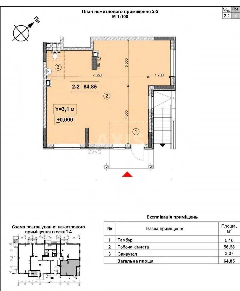
Об'єкт торгівлі вул. Олеся Бердника 1, 66м2

  • Святошинський район вул. Олеся Бердника 1
  • Код: SC-221-600
  • Добавлено: 22.02.2026
  • Додати в обране
Тип ринку
Вторинний ринок
Вулиця
вул. Олеся Бердника 1
Назначение
Торгове приміщення
Поверх
1 Поверх
Поверховість
16 поверховий будинок
Загальна площа
66 м2
Загальний стан
Без ремонту
Ціна:
9 309 949 грн.
215 000 USD
Опис об'єкту

ЖК «Нивки-Парк», приміщення вільного призначення. 9-й будинок, введений в эксплуатацию. Благоустрій двору завершено. Можна заходити на ремонт. Стан приміщення під ремонт. Можливе призначення – аптека, кав’ярня, банк, продукти, барбер та інше.

Схожі пропозиції