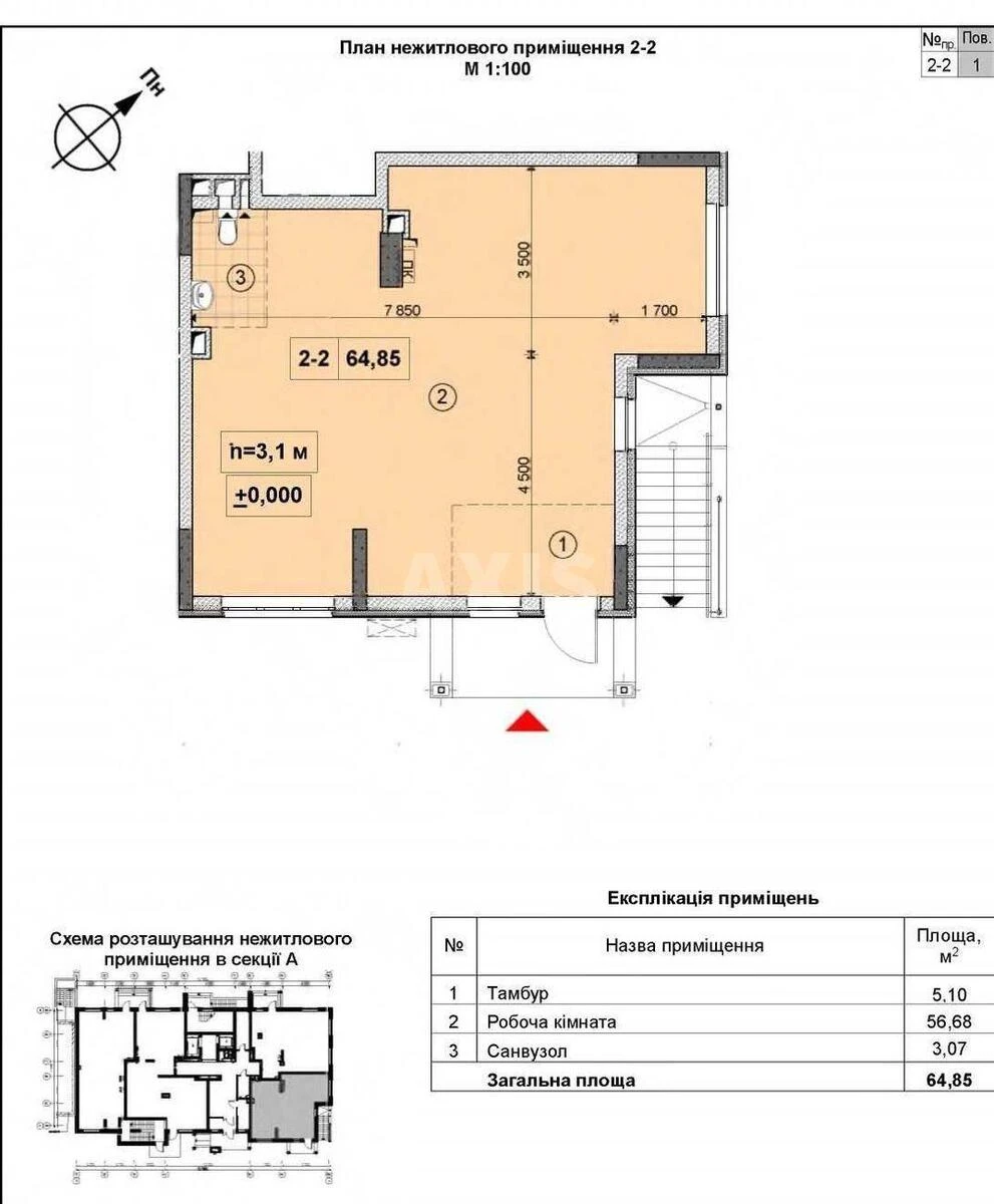
Trade object vul. Olesja Berdnyka 1, 66m2

  • Sviatoshynskyi District vul. Olesja Berdnyka 1
  • Code: SC-221-600
  • Added by: 22.02.2026
  • Add to favorites
Market type
Secondary market
Street
vul. Olesja Berdnyka 1
Purpose
Trade Premise
Floor
1 Floor
Number of storeys
16 storey house
Total area
66 м2
General state
Without repair
Price:
9 309 949 UAH
215 000 USD
Description of the object

Nivki Park residential complex, premises for free use. Building 9, commissioned. Courtyard landscaping completed. Ready for renovation. Premises in need of renovation. Possible uses: pharmacy, café, bank, grocery store, barber shop, etc.

Similar offers