Объект торговли ул. Олеся Бердника 1, 66м2

  • Святошинский район ул. Олеся Бердника 1
  • Код: SC-221-600
  • Добавлено: 22.02.2026
  • Добавить в избранное
Тип рынка
Вторичный рынок
Улица
ул. Олеся Бердника 1
Призначення
Торговое помещение
Этаж
1 Этаж
Этажность
16 этажный дом
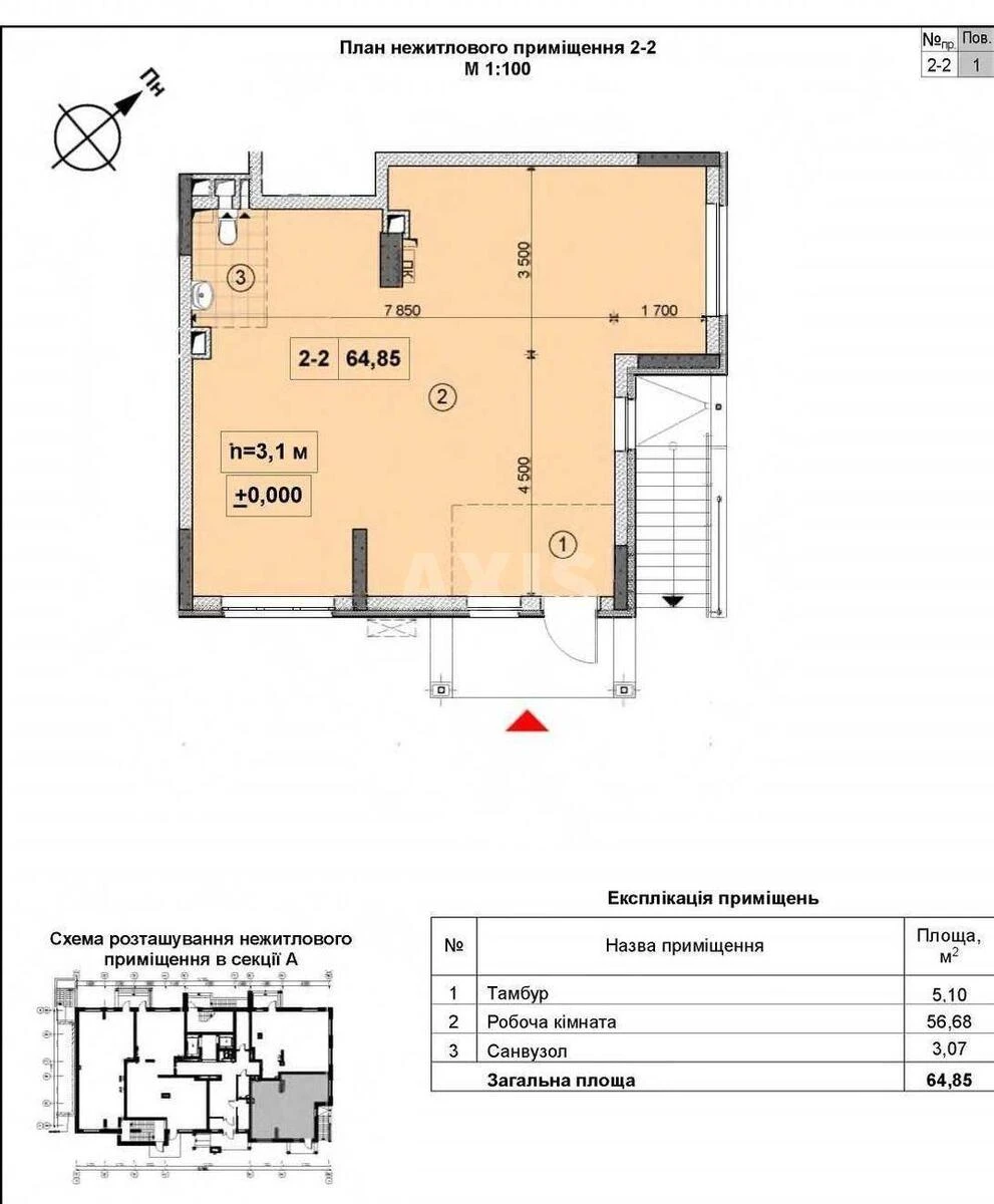
Общая площадь
66 м2
Общее состояние
Без ремонта
Цена:
9 309 949 грн.
215 000 USD
Описание объекта

ЖК «Нивки-Парк», помещение свободного назначения. 9-й дом, введен в эксплуатацию. Благоустройство двора завершено. Можно заходить на ремонт. Состояние помещения под ремонт. Возможное назначение – аптека, кафе, банк, продукты, барбер и прочее.

Похожие предложения